Stråtækt feriehus med brændeovn og udebruser i Blåvand
Fyrvej 56, Blåvand - Sommerhusnr.: 60501
Om huset
På Fyrvej 56 i Blåvand kan I holde ferie i dette hyggelige sommerhus, der blev delvist renoveret i 2022/23. Sommerhuset byder op til 8 feriegæster og 1 hund velkommen til en dejlig ferie i gode omgivelser. I sommerhuset er der en brændeovn, og udendørs finder I en udebruser, hvor I kan skylle sandet af fødderne efter en gåtur på stranden. Vesterhavet og den smukke sandstrand ligger blot 200 meter fra feriehuset.
Feriehygge foran brændeovnen på Fyrvej 56
I sommerhusets alrum kan hele familien samles til hyggelige stunder, mens brændeovnen knitrer og spreder varme samt en ekstra god feriestemning. Vinduespartiet i sofahjørnet giver et fint lysindfald i rummet og skaber en dejlig atmosfære. Sommerhuset har en varmepumpe, som I med fordel kan benytte jer af som energibesparende opvarmningsmetode.
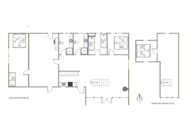
Sommerhuset har 2 fine badeværelser med gulvvarme, og desuden er der vaskemaskine i feriehuset.
Til natten kan I fordele jer på de 4 soveværelser, hvoraf der er 3 med dobbeltseng. På det sidste værelse finder I 2 enkeltsenge.
Sommerhuset består af 2 plan, og på 1. sal finder i et værelse med en dobbeltseng. Her er der desuden et opholdsrum, hvor I kan samles til et spil kort og nyde udsigten over området.
Skøn terrasse og legeplads til børnene
Sommerhuset har en skøn terrasse, som er opdelt i 2. Her er en afskærmet og overdækket del samt en åben del, hvorfra I kan nyde solen. Terrasserne skal naturligvis bruges til grillaftenen, da der både er havemøbler og grill til jeres rådighed.
Ved sommerhuset er der en lille legeplads til familiens yngste, bestående af både sandkasse, gyngestativ og legehus. Desuden er der også god plads på naturgrunden til at spille bold eller lege fangeleg. Sommerhusets grund er i alt 1675 m2.
Sommerhus nær stranden ved Blåvand
Sommerhuset på Fyrvej 56 ligger kun 200 meter fra Vesterhavet, som I uden tvivl kommer til at besøge flere gang i løbet af ferien. Det er det oplagte sted til gåture, uanset hvilken årstid I holder ferie. På en lun sommerdag kan I gå med fødderne i vandkanten og skylle sandet af under sommerhusets udebruser, der kan benyttes fra 1. april til 31. oktober.
Når I holder ferie i Blåvand, er der masser af aktiviteter for hele familien. En af de helt store attraktioner er Blåvand Fyr, som står på Danmarks vestligste punkt. Derudover kan det anbefales at tage en tur til bunkermuseet, den lille zoo i Blåvand og de mange butikker i byen.
- Soverum:4
- Bolig-/Grundareal:150 / 1675 m²
- Renoveret / Byggeår:2022 / 1979
Lokalkontor
Esmark Blåvand
Telefon: +45 69 15 96 16
E-mail: blaavand@esmark.dk
Nøgleudlevering
Nøglen kan afhentes fra kl. 15.00, men vi udleverer den også gerne tidligere på dagen, hvis feriehuset er klar til indflytning før tid.
GastDeutschlandAI Oversat
5 ud af 5
5 ud af 5
Velholdt og funktionelt hus med kærlighed til detaljen i nærheden af stranden med tilstrækkelig plads og hyggelige kroge både inde og ude.
Elke WunderlichDeutschlandAI Oversat
4.5 ud af 5
4.5 ud af 5
Feriehuset er virkelig hyggeligt og har mange siddegrupper til afslapning. Beliggenheden tæt på stranden er fantastisk.
Lars PaulsenDeutschlandAI Oversat
4.5 ud af 5
4.5 ud af 5
Efter man har åbnet døren føler man sig straks hjemme og godt tilpas. Alt hvad man har brug for til en afslappende ferie er der. Roen og beliggenheden er fremragende.
Sandra MachDeutschlandAI Oversat
4 ud af 5
4 ud af 5
Et hyggeligt hus med rustik, funktionel indretning og kærlige detaljer. Det tilbyder rigelig plads både indendørs og udendørs. For børn i alle aldre er der mulighed for at beskæftige sig og bevæge sig. Spil, gynger, mål, sandkasse og et legehus.
GastDeutschlandAI Oversat
5 ud af 5
5 ud af 5
Indlejret i det smukke landskab ligger dette lyse, hyggelige hus og byder straks velkommen. Kaffedrikning med rådyr og hare og derefter hoppe over til den brede strand. Dette hus tilbyder alt til den afslappede strandferie + Det er også praktisk indrettet, små og store sandfødder kan nemt renses foran opholdsrummene. Køkkenet har alt og inviterer til snak under madlavningen. Et vidunderligt feriested! En flersproget manual til komfuret. Eller direkte en foto-vejledning...
GastDeutschlandAI Oversat
4.5 ud af 5
4.5 ud af 5
Feriehuset er for det meste renoveret og i god stand. Terrassen er noget slidt. Brædderne er delvist beskadiget, og søm stikker ud. Risiko for skader. Der mangler en emhætte i køkkenet. Desuden kunne der være flere stikkontakter i soveværelserne og badeværelserne. Huset er helt i orden hvad angår beliggenhed og faciliteter.
GastDeutschlandAI Oversat
5 ud af 5
5 ud af 5
Dejligt feriehus med rigeligt med plads indendørs og en stor have. Meget hyggeligt indrettet og udstyret med alt hvad man behøver. Særligt smukke er de hyggelige siddeområder på den øvre etage med de store vinduer.
Sandra BraunDeutschlandAI Oversat
5 ud af 5
5 ud af 5
Feriehuset er super godt udstyret, der er mange sovepladser. Masser af plads, også udendørs. Rundt om er der siddepladser. Udendørsbruseren er sikkert fantastisk om sommeren, når man kommer fra stranden for at skylle sig direkte. Stranden er også meget tæt på.
GastDeutschlandAI Oversat
5 ud af 5
5 ud af 5
Feriehuset er i en fantastisk beliggenhed, meget tæt på stranden. Badeværelserne er meget flotte og godt udstyret. Vi kunne også rigtig godt lide stue- og spisestueområdet. Køkkenet er udstyret med alt, hvad man har brug for. Vi har tilbragt en vidunderlig uge i Blåvand.
Isabel WeberDeutschlandAI Oversat
5 ud af 5
5 ud af 5
Huset har en dejlig beliggenhed lidt uden for byen med en kort vej til stranden. Alligevel kan indkøbsmuligheder nås til fods. Huset er særligt velegnet for flere familier, da det ud over den fælles stue har flere hyggelige læse- eller legeområder.
Tanja PittnerDeutschlandAI Oversat
5 ud af 5
5 ud af 5
Sommerhuset er absolut anbefalelsesværdigt. Meget hyggeligt, åbent og lyst. Et køkken, hvor intet mangler, to flotte badeværelser og komfortable senge. Masser af plads til jakker, sko og andet. Dog kunne pladsen ved bordet og på sofaen til 8 personer blive lidt trang.
Michael WegenerDeutschlandAI Oversat
4.5 ud af 5
4.5 ud af 5
Huset var rent og ryddeligt, udstyr også i orden.
Cathleen KuntzeDeutschlandAI Oversat
4.5 ud af 5
4.5 ud af 5
Enkel, men meget hyggelig og smagfuldt indrettet feriehus. Her mangler intet, køkkenet er godt udstyret, vaskemaskine, tørresnor, liggestole, alt er der. Huset ligger tæt på stranden og midt i naturen. Af og til besøger rådyr, hjort og harer. Skønt stort grundstykke med nok afstand til vandet. Vi nød det meget.
GastDeutschlandAI Oversat
4.5 ud af 5
4.5 ud af 5
Dejligt, hyggeligt sommerhus med god indretning. Beliggenheden var perfekt for os, super tæt på stranden. Fredeligt beliggende, man kan høre havet. Udeområdet er fantastisk, der er mange siddepladser rundt om huset.
GastDeutschlandAI Oversat
4.5 ud af 5
4.5 ud af 5
Huset er rummeligt og udstyret med alt, hvad man har brug for til en familieferie. Det er tæt på stranden.
Irina KoppetschDeutschlandAI Oversat
5 ud af 5
5 ud af 5
Huset er skønt stort og meget kærligt indrettet og dekoreret. Udstyret med service og køkkenmaskiner er meget omfattende, vi savnede ingenting. Værelset med tre senge var i marts meget svært at få varmt, da det ligger lidt for sig selv. Haven med legehus, gynger og meget legetøj var ideel for små børn. Vi kan anbefale huset.
Indretning
Kalender
Om området

Dit servicekontor i nærheden
Esmark Blåvand
Blåvandvej 1
6857 Blåvand
Telefon: +45 69 15 96 16
Email: blaavand@esmark.dk
5.958
5.958
5.958
Oplistet i: OmråderBlåvandFyrvej 56, 6857 Blåvand





















































