Lyst og hyggeligt feriehus med lukket terrasse og læ, tæt på havet.
Bjerregårdsvej 321, Bjerregård - Sommerhusnr.: B2747
Om huset
Midt i det hyggelige Bjerregård feriehusområde finder I dette lille, hyggelige og lyse feriehus på Bjerregårdsvej 321. Huset er gennemrenoveret i 2014 og fremstår venligt, lyst og indbydende. Et rigtig dejligt feriehus til 4 personer. Her vil I nyde at tilbringe en dejlig og afslappende ferie med familien. Huset er i træ og ligger kun 300 meter fra Vesterhavet
Lys og venlig indretning.
Huset er dejlig lyst og godt indrettet med åben køkken-opholdsrum, som er det centrale i huset. Her er hyggeligt og indbydende med godt lysindfald fra de store vinduespartier. Fra køkkenafdelingen kan man nemt følge med i samtalen i stuen, og her kan man, måske især på kolde dage, også hygge med en kop kaffe og en god bog foran brændeovnen, og lytte til havets brusen og den knitrende ild.
Med den gratis internetforbindelse kan I til enhver dele jeres nye feriebilleder med dem derhjemme, ligesom I kan lave research på nettet og planlægge de næste feriedages aktiviteter.
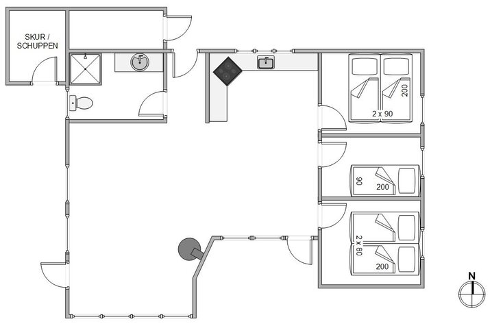
Der er flotte trægulve i stue og værelser, samt gulvvarme i badeværelset. De 4 sovepladser er fordelt i 2 store soverum og 1 lidt mindre soverum.
For især småbørnsfamilierne vil vaskemaskinen og tørretumbleren være til stor gavn, når der er blevet leget udenfor hele dagen.
Nyd den friske luft og solnedgangen over klitterne
Der er udgang fra opholdsrummet til en skøn og lukket terrasse mod syd og øst, hvor der også er læ-hjørner, så det til enhver tid er muligt at finde et sted at nyde solens stråler. Findes der noget bedre end et glas vin på terrassen – efter en lækker grillmiddag - mens man kan nyde solnedgangen over klitterne?
Når I vil til stranden, ligger denne kun 300 meter fra huset. Her kan børnene flyve med drage eller bygge sandslotte, og om aftenen kan I gå en tur langs vandkanten, mens solen går ned i horisonten.
Lademuligheden for el bilen er et CEE kombistik (kraftstik), medbring eget ladekabel.
- Soverum:3
- Bolig-/Grundareal:85 / 1200 m²
- Renoveret / Byggeår:2014 / 1978
Lokalkontor
Esmark Bjerregård
Telefon: +45 69 15 96 12
E-mail: bjerregaard@esmark.dk
Nøgleudlevering
Nøglen kan afhentes fra kl. 15.00, men vi udleverer den også gerne tidligere på dagen, hvis feriehuset er klar til indflytning før tid.
Nicole BauerDeutschlandAI Oversat
4.5 ud af 5
4.5 ud af 5
Et vidunderligt hus, ikke langt fra stranden. Den, der søger ro her, finder det helt sikkert. Huset er hyggeligt og godt udstyret. Her ligger der meget kærlighed fra ejerne. Vi kommer igen!
GastDeutschlandAI Oversat
5 ud af 5
5 ud af 5
Vi har haft to vidunderlige uger her, og der har ikke manglet noget. En fantastisk grill gjorde vores aftener endnu bedre. Vores datter fandt masser af legetøj til udendørs leg. Hver krog af terrassen indbød til afslapning og til at nyde solen. En terrasse er endda omgivet af en klit, så man får en rigtig strandstemning. Sengene var meget komfortable, og både i køkkenet og opholdsområdet var alt til vores tilfredshed. Bruseren har en lille sokkel, så badeværelset ikke bliver oversvømmet, og hårtørreren har masser af kraft. Vi kommer igen :-)
GastDeutschlandAI Oversat
4.5 ud af 5
4.5 ud af 5
Vi har været i dette hus 2 gange og har booket det igen til næste år. Det er som at komme hjem. Jeg kan kun anbefale det
GastDeutschlandAI Oversat
4.5 ud af 5
4.5 ud af 5
Vi var i dette sommerhus for 2. gang (2 personer) og følte os igen meget godt tilpas. De mange terrasser, den rolige beliggenhed og den relativt korte vej til stranden var afgørende for, at vi endnu en gang havnede her.
Steffen EisenbergDeutschlandAI Oversat
3.5 ud af 5
3.5 ud af 5
Tæt på stranden. De mange terrasser lader intet tilbage at ønske 26⛱️
Walter GrabowskiDeutschlandAI Oversat
5 ud af 5
5 ud af 5
Et meget dejligt feriehus til familier med børn eller også bare for to. Indretningen er komplet, og alt hvad man har brug for er rigeligt til stede. De 2 terrasser sikrer, at man kan nyde solen hele dagen. Vejen til stranden er heller ikke langt.
GastDeutschlandAI Oversat
5 ud af 5
5 ud af 5
Roligt, beliggende på en sidegade, dejligt, godt møbleret sommerhus. Tilstrækkeligt med siddepladser, veludstyret køkken, funktionelt badeværelse. Stor terrasse med flere siddegrupper. Kun en kort vej til stranden.
GastDeutschlandAI Oversat
5 ud af 5
5 ud af 5
Et meget dejligt sommerhus. Meget rent og meget pænt indrettet. Men der mangler et skab, hvor man også kan hænge tøj op. På badeværelset mangler der en stol. I bruseren, en hylde.
GastDeutschlandAI Oversat
5 ud af 5
5 ud af 5
Vi har nu været for tredje gang i Bjerregard, og det har som altid været vidunderligt. Huset har vi været meget glade for, man er hurtigt ved stranden, rundt om huset er der terrasser, hvor man kan sidde hyggeligt.
GastDeutschlandAI Oversat
5 ud af 5
5 ud af 5
Vi kunne virkelig godt lide huset, det ligger tæt på stranden og er udstyret med alt, hvad man har brug for.
Reiner SchneiderDeutschlandAI Oversat
5 ud af 5
5 ud af 5
Der er blevet gjort en indsats med valg af møbler og inventar, det er ikke bare overloadet med møbler. Man føler sig godt tilpas i disse lyse bygninger. Man finder alt hvad man behøver til en god afslappende ferie.
GastDeutschlandAI Oversat
5 ud af 5
5 ud af 5
Huset er meget tiltalende og vi følte os hjemme.
GastDeutschlandAI Oversat
4.5 ud af 5
4.5 ud af 5
Et meget pænt og velholdt feriehus til en familie. Kan vi bestemt anbefale.
Christian ScharfDeutschlandAI Oversat
5 ud af 5
5 ud af 5
Ferieboligen ligger i en meget smuk og rolig beliggenhed. Specielt skønt er det faktum, at der her i alt findes tre terrasser, så man på alle tider af dagen kan nyde solen omkring huset. Perfekt er også bænken foran indgangsområdet, til afslappet at vaske de sandede kropsdele efter strandbesøget siddende! Et enkelt og på samme tid godt hus, som jeg ubegrænset kan anbefale!!!
GastDeutschlandAI Oversat
5 ud af 5
5 ud af 5
Et lille og hyggeligt feriehus, meget rent, fantastisk, stort set lukkede terrasser, separat opbevarings - / vaskerum. Perfekt til en lille familie! Kort gåtur til stranden. Vi ville helt sikkert komme tilbage!
Jochen ZimmermannDeutschlandAI Oversat
5 ud af 5
5 ud af 5
Lille men hyggeligt
Thomas RoßowDeutschlandAI Oversat
4.5 ud af 5
4.5 ud af 5
Et godt indrettet, lyst hus, hvor man føler sig meget godt tilpas.
Tobias MillardDeutschlandAI Oversat
4.5 ud af 5
4.5 ud af 5
Et virkelig skønt (lille) sommerhus, perfekt til fire personer. Huset er meget lyst, har en stor terrasse og en sandkasse hvor små børn kan lege. Køkkenet er et højdepunkt, da det virkelig er meget veludstyret. Beliggenheden er perfekt, da huset ligger på en sidevej og dermed næsten ingen trafik er. En ulempe kunne være de noget ukomfortable sofaer og sengetøjet fyldt med fjer, hvilket ikke rigtig er allergivenligt. Men alt i alt et virkelig skønt hus til en ferie. Vi kommer igen!
Pia LichtenfeldDeutschlandAI Oversat
4.5 ud af 5
4.5 ud af 5
Dejligt lille sommerhus, perfekt til to. Lys og venlig indretning. Stort køkken med god indretning.
Indretning
Kalender
Om området

Dit servicekontor i nærheden
Esmark Bjerregård
Sønder Klitvej 195
6960 Hvide Sande
Telefon: +45 69 15 96 12
Email: bjerregaard@esmark.dk
2.658
2.998
2.998


















































