4-personers sommerhus med skøn terrasse ved Vesterhavet
Riskrogvej 25, Haurvig - Sommerhusnr.: D3766
Om huset
I sommerhuset på Riskrogvej 25 har du alt omkring dig. Her kan op til 4 personer slappe af på den skønne terrasse, nyde den særegne udsigt over klitterne og naturen i det vestjyske landskab. Den rummelige opholdsstue inviterer til spilleaftener eller afslappende timer foran brændeovnen. Afslappende eller aktiv ferie, det hele er muligt her. Sommerhuset ligger på en skøn naturgrund med udebruser, så I kan skylle sandet af tæerne efter en tur ved Vesterhavet.
Hyggelige dage imellem klitterne på Riskrogvej 25
Dette smukke sommerhus på Riskrogvej 25 i Haurvig er blevet renoveret i 2022 og emmer af skandinavisk hygge. Op til 4 personer kan glæde sig over de 70 veludnyttede kvadratmeter. Den hyggelige opholdsstue har trægulv og giver mulighed for at slappe af om aftenen med en god bog eller med et glas vin foran brændeovnen.
Opvarmningen i det moderniserede feriehus suppleres med en energibesparende varmepumpe. Dette sikrer behagelig varme i al slags vejr. I det rummelige køkken finder du opvaskemaskine og et kombi køle-fryseskab med 80 liter fryserum. Måske får du lyst til at afprøve et par af de lokale opskrifter – eller du tilbereder din hjemmefangede fisk her?
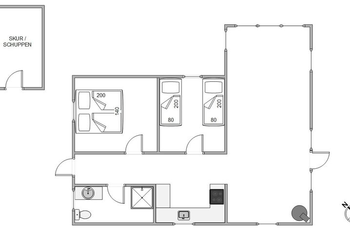
De 2 soveværelser indeholder henholdsvis 1 dobbeltseng og 2 enkeltsenge. Det smukke trægulv bidrager til en hyggelig atmosfære. I det praktisk indrettede badeværelse er der gulvvarme, så her behøver du ikke at få kolde fødder.
Sommerhus i klitlandskab med kun 550 meter til Vesterhavet
På den rummelige, afskærmede og delvist overdækkede terrasse kan du indtage nogle af måltiderne, slappe af med solbadning eller grille aftensmaden. På naturgrunden finder du en udendørs bruser og et redskabsrum. Udebruseren kan benyttes fra april til november. I en afstand af kun 550 meter ligger Vesterhavet og den dejlige sandstrand, som altså kun er en frisk gåtur fra feriehuset.
En kort køretur mod nord bringer jer til den hyggelige havneby Hvide Sande, der, udover supermarkeder, byder på et udvalg af lokale restauranter og butikker.
- Soverum:2
- Bolig-/Grundareal:70 / 2199 m²
- Renoveret / Byggeår:2022 / 1973
Lokalkontor
Esmark Bjerregård
Telefon: +45 69 15 96 12
E-mail: bjerregaard@esmark.dk
Nøgleudlevering
Nøglen kan afhentes fra kl. 15.00, men vi udleverer den også gerne tidligere på dagen, hvis feriehuset er klar til indflytning før tid.
GastDeutschlandAI Oversat
4.5 ud af 5
4.5 ud af 5
Et skønt, hyggeligt og fremragende velplejet lille sommerhus, hvor vi følte os meget godt tilpas. Pladsen er godt nok begrænset, men for os (2 voksne, 2 børn) var den fuldstændig tilstrækkelig. Sengen i soveværelset er dog muligvis for smal til nogle par (ca. 120 cm bred).
Julian JannsenDeutschlandAI Oversat
4.5 ud af 5
4.5 ud af 5
Lille, men fint. Herligt beliggende, smuk terrasse, super udstyret - vi havde en vidunderlig tid!
Indretning
Kalender
Om området

Dit servicekontor i nærheden
Esmark Bjerregård
Sønder Klitvej 195
6960 Hvide Sande
Telefon: +45 69 15 96 12
Email: bjerregaard@esmark.dk
Oplistet i: OmråderHaurvigRiskrogvej 25, 6960 Hvide Sande
















































