Om huset
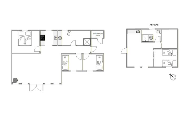
Vil I på familieferie og have bedsteforældre eller jeres store børn med? Så er dette feriehus perfekt til jer! Det dejligt lyse sommerhus, som er renoveret i 2020, består af et hovedhus og et fint gæstehus med eget bad og opholdsrum med tekøkken. En dejlig pavillon og en stor lukket terrasse er prikken over i'et.
Sommerhus med pavillon og skøn lukket terrasse
Sommerhuset ligger på Gammelgabvej 62 i et dejligt naturområde ved Vesterhavet. Med Lønne-, Nymindegab – og Blåbjerg Plantage, Ringkøbing Fjord og Filsø i nærområdet er her de optimale betingelser for aktiviteter i naturen, både til lands og vands.
Nyd den læfyldte grund og hyg jer på den lukkede terrasse imens børnene leger på naturgrunden, hvor der også er gynger. Måske skal hele familien også på en tur på skinnecyklerne på den nedlagte bane, der fører gennem smuk natur fra Nr. Nebel til Nymindegab – forbi en grillhytte, så medbring gerne en madpakke med grillpølser. Tilbage i Nr. Nebel kan I købe en kage ved bageren og så nyde den velfortjente eftermiddagskaffe hjemme i jeres egen skønne pavillon.
Dejligt Anneks med eget tekøkken og bad
Sommerhuset på Gammelgabvej har plads til op til 6 personer, som her kan nyde feriedagene sammen. I kan fordele jer på 5 soverum og her er 2 badeværelser til jeres rådighed. Et hyggeligt opholdsrum med brændeovn er husets samlingssted – og med et godt indrettet køkken med opvaskemaskine er der god tid til ferieprogrammet, om det står på familiespil ved spisebordet eller om I samles til aftenhygge på den lukkede terrasse.
Annekset har 25 m2 og er perfekt, når man gerne vil være sammen og alligevel godt vil have sit eget lille rige. Her er der 2 soverum, et opholdsrum og eget badeværelse.
Strand og fjord - skov og hede
Tag cyklerne med og nyd turen ned over klitterne til den dejlige strand ved det brusende Vesterhav. For ægte vandhunde er her masser af aktivitetsmuligheder. Ringkøbing Fjord er perfekt til både surfing, kajak, stand-up paddle og lystfiskeri. For både store og små er der masser af gode udflugtsmuligheder, om der skal købes fisk eller bare shoppes i Hvide Sande, leges i Bork legeland eller hygges på torvet af den gamle smukke købstad Ringkøbing.
- Soverum:4
- Bolig-/Grundareal:91 / 1200 m²
- Renoveret / Byggeår:2020 / 1990
Lokalkontor
Esmark Houstrup
Telefon: +45 69 15 96 13
E-mail: houstrup@esmark.dk
Nøgleudlevering
Nøglen kan afhentes fra kl. 15.00, men vi udleverer den også gerne tidligere på dagen, hvis feriehuset er klar til indflytning før tid.
GastDeutschlandAI Oversat
5 ud af 5
5 ud af 5
Feriehuset er meget hyggeligt, og alt er til stede. Da det allerede var meget efterårsagtigt, kunne vi desværre ikke nyde den dejlige terrasse, men den er fantastisk. Haven er meget velholdt
Ludger WandDeutschlandAI Oversat
5 ud af 5
5 ud af 5
Huset er kærligt indrettet og dekoreret. At slutrengøringen er inkluderet i prisen, synes vi meget godt om. Selvom huset er ældre, er tilstanden helt i top. Ludger Wand
Kathrin PreißDeutschlandAI Oversat
4.5 ud af 5
4.5 ud af 5
Feriehuset er meget hyggeligt indrettet og har alt, hvad man har brug for på ferien. Haven er lige så velholdt som huset selv. Her kan man virkelig slappe af.
GastDeutschlandAI Oversat
4 ud af 5
4 ud af 5
Hvis man kan leve med, at man skal bruge en bil for at komme til stranden, ligger huset i et smukt område i skoven. Huset er i orden for 4 personer. Annekset fungerer mere som en nødløsning, når man ser på målene. Det er også ærgerligt, at man kun har internet inde i huset. Bortset fra det opfylder huset forventningerne.
Silvia EngelDeutschlandAI Oversat
5 ud af 5
5 ud af 5
Huset er hyggeligt og meget idyllisk beliggende. Den, der søger ro, vil finde det her perfekt. Især den lukkede terrasse med forskellige siddepladser er dejlig. Køkkenet er meget veludstyret. Vi har booket huset for 3. gang. Og vi ville booke det igen.
Matthias DetlaffDeutschlandAI Oversat
5 ud af 5
5 ud af 5
Feriehuset er lille men godt. Alt passer! Selvfølgelig ville en lille sauna være fantastisk, men man kan ikke altid få alt. Alt passede perfekt. Sengene var komfortable. Pejsen trak godt igennem. Grillen fungerede upåklageligt og var ren. Måske ville en stærkere WiFi-forbindelse til det andet hus være en fordel, især når man har børn. Desværre kan de jo ikke undvære det i dag. Men alt i alt kan jeg varmt anbefale dette hus. Hyggeligt, rent, velholdt, og beliggenheden omgivet af skov er perfekt til en hurtig hundetur. Vi overvejer at booke dette hus igen.
Sascha RohdeDeutschlandAI Oversat
4.5 ud af 5
4.5 ud af 5
Lille, men meget hyggeligt feriehus med god indretning.
Marco EdlerDeutschlandAI Oversat
5 ud af 5
5 ud af 5
Feriehuset er meget veludstyret og kærligt indrettet. Alle praktiske ting er til stede. Det ligger meget roligt. Bare et dejligt feriehus til afslapning og hygge. Mange tak.
GastDeutschlandAI Oversat
4.5 ud af 5
4.5 ud af 5
Vi følte os meget godt tilpas i dette feriehus, det er indrettet med meget kærlighed og stil, især kunne vi godt lide den helt lukkede terrasse, som var enormt stor, især som hundeejer behøver man ikke bekymre sig om, at hunden 'forsvinder' 😉 Beliggenheden er også fantastisk med direkte stier i skoven og cykelstier til stranden.
GastDeutschlandAI Oversat
5 ud af 5
5 ud af 5
Meget smukt hus i rolig beliggenhed, velplejet grund, fantastiske store terrasser... et soveværelse med dobbeltseng, 2 små enkeltværelser (vi brugte dem til vores bagage)... 2 personer med hund... Køkken meget godt udstyret. Vi følte os meget godt tilpas.
Silvia EngelDeutschlandAI Oversat
5 ud af 5
5 ud af 5
Det er et meget hyggeligt hus. Godt udstyret. Med meget service og nye apparater (komfur, ovn, tv).
Torsten SchmittDeutschlandAI Oversat
5 ud af 5
5 ud af 5
Meget flot og godt udstyret sommerhus. Genialt for hundeejere er den store lukkede terrasse. Vi kunne især godt lide det store badeværelse! På grunden er der også et lille tilhørende feriehus til 2 personer, inkl. køkken, WC og bruser, ideelt til større børn eller medrejsende bedsteforældre, som også gerne vil nyde deres privatliv.
Ulrich BongardtDeutschlandAI Oversat
5 ud af 5
5 ud af 5
Huset har en god beliggenhed, er fremragende udstyret og meget smagfuldt indrettet - der mangler intet. Det ekstra lille gæstehus er en perle.
GastDeutschlandAI Oversat
5 ud af 5
5 ud af 5
Super hus, alt til stede, meget rent og smagfuld dekoration. Køkkenet er ret lille. Badeværelset er til gengæld rummeligt.
Indretning
Kalender
Om området

Dit servicekontor i nærheden
Esmark Houstrup
Houstrup Strandvej 4
6830 Nørre Nebel
Telefon: +45 69 15 96 13
Email: houstrup@esmark.dk
3.578
3.578
3.578
Oplistet i: OmråderHoustrupGammelgabvej 62, 6830 Nr. Nebel




















































