Sommerhus tæt på strand, natur og oplevelser
C L Møllersvej 32, Toftum, Rømø - Sommerhusnr.: 80308
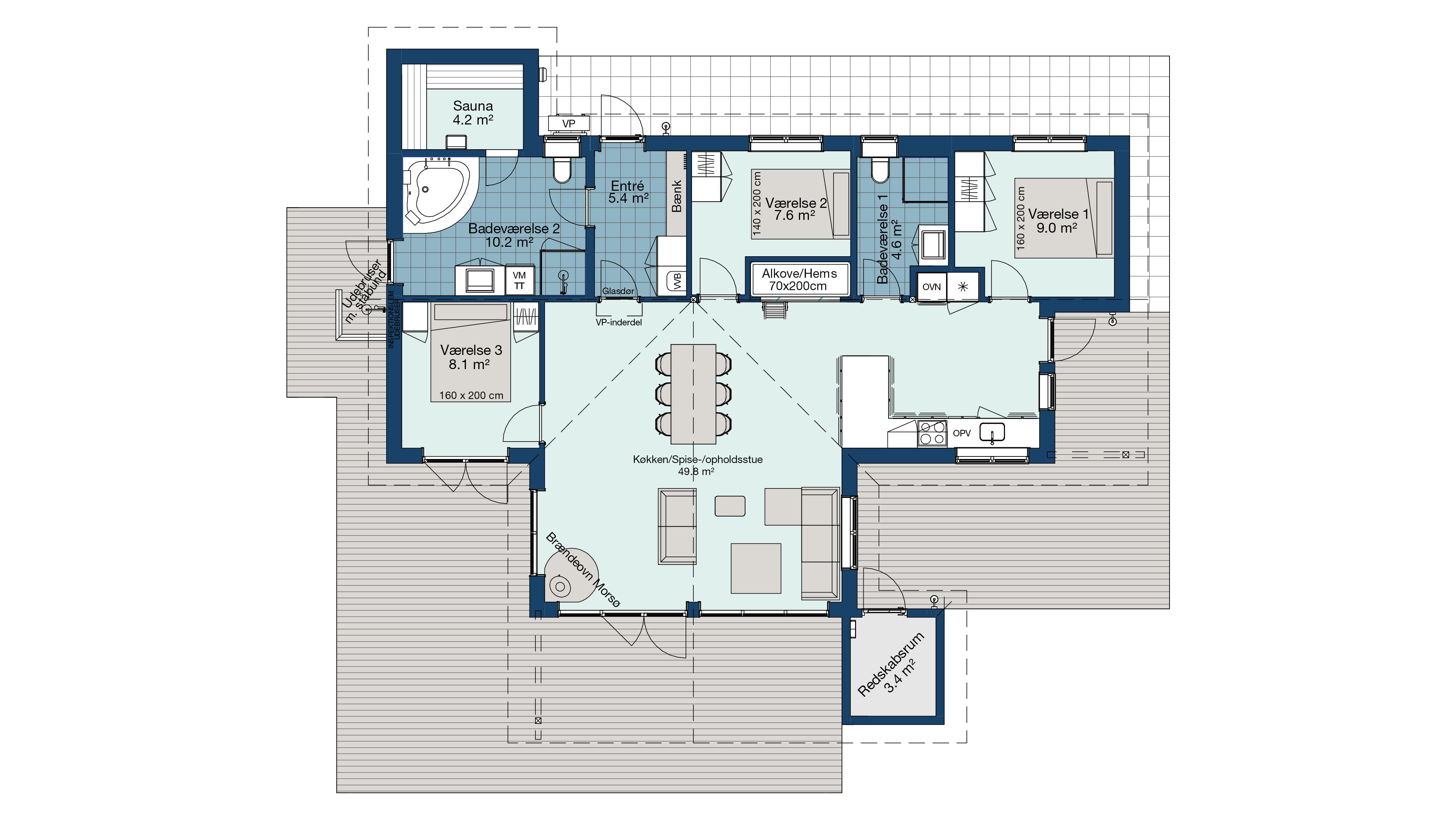
Om huset
På C. L. Møllersvej 32 i Toftum finder du et indbydende sommerhus med god plads til ferie i dit helt eget tempo. Her råder du over 118 m² og plads til 6 personer – perfekt til både familieferie og ophold med venner.
Sommerhuset ligger på en stor naturgrund på hele 2800 m², hvor der er masser af luft omkring jer. Her er god plads til leg, afslapning og til at nyde Rømøs åbne landskab og særlige ro.
Komfortabel indretning året rundt
Huset er indrettet til ferie i alle sæsoner. En energieffektiv luft-til-luft-varmepumpe sikrer en behagelig temperatur året rundt, mens brændeovnen skaber ekstra hygge på kølige aftener.
Planløsningen byder på 3 soverum med i alt 2 dobbeltsenge og 2 enkeltsenge, så alle kan få en god nats søvn og vågne friske til nye oplevelser. Med 2 badeværelser bliver hverdagen nemmere, når I er flere afsted, og gulvvarme i badeværelset giver en ekstra behagelig start på dagen.
Trænger du til forkælelse, kan du sætte tempoet helt ned i saunaen eller nyde en afslappende stund i tømmespaen. Efter en dag ved stranden kan udebruseren give en frisk afslutning, inden aftenen fortsætter indenfor med ro og nærvær.
Terrasser, naturgrund og skønt udeliv
Udelivet får optimale betingelser med både åben, afskærmet og overdækket terrasse. Her kan du næsten altid finde læ, sol eller skygge – alt efter behov. Havemøblerne gør det let at nyde morgenkaffen, frokosten eller en lang middag under åben himmel.
Den store naturgrund giver en dejlig frihedsfølelse, hvor feriedagene kan flyde ubesværet.
Hunden er også velkommen, så I kan samle hele familien – også det firbenede medlem. Der må medbringes 1 hund.
Praktiske faciliteter, der gør ferien nem
Køkkenet er udstyret med opvaskemaskine, så tiden kan bruges på ferie frem for opvask. Den separate fryser på 97 liter giver god plads til is og proviant.
Vaskemaskine og tørretumbler er en fordel efter strandture og aktive dage i det fri, og med Chromecast kan I nemt samles om en film eller serie, når aftenen kalder på afslapning.
Der er desuden ladestik til elbil, så bilen kan lades op, mens I nyder ferien.
Huset ligger kun 4,3 km fra den brede badestrand Lakolk, som indbyder til lange gåture, badeture og frisk luft fra Vesterhavet. Indkøbsmuligheder findes 7,5 km fra huset, så I nemt kan planlægge indkøb og bruge resten af tiden på oplevelser.
Oplevelser nær Toftum på Rømø
Sommerhuset er et oplagt valg for dig, der vil kombinere komfort med storslåede naturoplevelser. Rømø ligger midt i Vadehavet – et UNESCO-verdensarvsområde kendt for tidevand, rigt fugleliv og imponerende vidder.
Tag turen op i Marsk Tower og oplev den fantastiske udsigt over marsklandskabet, eller besøg Ribe med sine brostensbelagte gader og historiske stemning. Tønder byder også på charme, kultur og gode spisesteder i smukke omgivelser.
Drømmer du om en ferie med god plads, wellness og komfort tæt på strand og verdensarv, er dette sommerhus et oplagt valg. Glæd dig til dage fyldt med natur, afslapning og tid til det, der betyder mest.
- Soverum:3
- Bolig-/Grundareal:118 / 2857 m²
- Byggeår:2026
Lokalkontor
Esmark Rømø
Telefon: +45 69 15 96 19
E-mail: romo@esmark.dk
Indretning
Kalender
Om området

Dit servicekontor i nærheden
Esmark Rømø
Juvrevej 6
6792 Rømø
Telefon: +45 69 15 96 19
Email: romo@esmark.dk
4.868
4.868
4.868





















