Om huset
Spændende indrettet og velholdt feriehus, der har en skøn beliggenhed på en naturgrund i et roligt område, hvor du også kan nyde udsigten til fjorden og og gåture til Vesterhavet, der ikke ligger langt derfra.
Velholdt feriehus til afslapning og gode hyggestunder
Feriehuset er dejligt og praktisk indrettet, så du kan nyde en rigtig dejlig ferie. I køkkenet har du god skabs- og bordplads, når du laver mad. Og da det er i åben forbindelse med spiseafdelingen, er det dejligt rummeligt og perfekt til hyggelige stunder med familien.
Stuen finder du i forskudt plan, hvilket har en god effekt og nærmest gør den til en rigtig hyggekrog, hvor der slappes af med en god film og ild i brændeovnen.
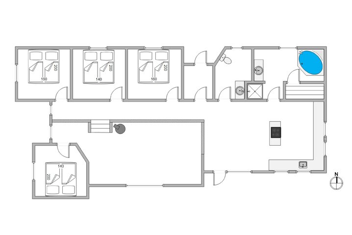
Derudover er der i dette feriehus lavet separat baderum og wc-rum, hvilket er praktisk, når du har en større familie, eller hvis du gerne vil have nogle afslappende stunder i spaen eller saunaen, som findes i baderummet.
Dejlig beliggenhed på en naturgrund i et roligt område
Feriehuset ligger på en skøn naturgrund, så du rigtig kan opleve den vestjyske natur med marehalm og klitter. Og på den gode terrasse kan du slappe af i liggestolen med en god bog, eller nyde morgenkaffen, frokosten eller grillaftenen med udsigten til fjorden i baggrunden.
Kort afstand til Vesterhavet og stranden
Fra feriehuset har du kun en god gåtur ned til stranden, hvor du året rundt kan nyde lange gåture langs vandet. Især om sommeren er det rigtigt skønt at komme ned og og køle af i de salte bølger.
Derudover er der heller ikke langt til Ringkøbing Fjord, der også har en rigtig smuk og mere idyllisk natur – måske er dette at fortrække, hvis du har småbørn med.
Ungdomsgrupper er ikke tilladt i huset.
- Soverum:4
- Bolig-/Grundareal:125 / 2000 m²
- Byggeår:1994
Lokalkontor
Esmark Hvide Sande
Telefon: +45 69 15 96 20
E-mail: hvidesande@esmark.dk
Nøgleudlevering
Nøglen kan afhentes fra kl. 15.00, men vi udleverer den også gerne tidligere på dagen, hvis feriehuset er klar til indflytning før tid.
Heidi IkelsDeutschlandAI Oversat
5 ud af 5
5 ud af 5
Huset er meget godt indrettet. Rigeligt med service og køkkenredskaber er tilgængelige. God rumfordeling og udstyr. Hyggelig opholdsstue.
Claudia BügeDeutschlandAI Oversat
5 ud af 5
5 ud af 5
Feriehus er godt indrettet, men desværre manglede der en hårtørrer
Thomas HasselDeutschlandAI Oversat
5 ud af 5
5 ud af 5
Huset er perfekt egnet til 6 voksne og fuldt udstyret. Køkkenet er godt teknisk udstyret, og alt til store menuer er tilgængeligt. Pejsen er meget smuk og gør stuen meget hyggelig. Meget god belysning til læsning er til stede. Adskillelsen af badeværelse og toilet er super. Så meget, meget anbefalelsesværdigt hus.
Michael WolpersDeutschlandAI Oversat
5 ud af 5
5 ud af 5
Meget smukt, hyggeligt, godt indrettet feriehus. Køkkenet er meget godt udstyret. Der er tykke og tynde dyner. Terrassen er udstyret med to borde, stole er tilstrækkelig tilgængelige samt parasol og grill. 5 minutter til den vidunderlige strand
GastDeutschlandAI Oversat
5 ud af 5
5 ud af 5
Fantastisk feriehus med udsigt over fjorden og klitterne. Smukt beliggende og meget roligt. En separat stue opdeler huset meget godt.
Stefanie PfahlerDeutschlandAI Oversat
5 ud af 5
5 ud af 5
Sjælden man har haft et så godt udstyret feriehus. Der er rigeligt med service og glas til rådighed Det er en skam, at der kun er et toilet Fantastisk, at man selv fra køkkenet kan se ud over fjorden
Indretning
Kalender
Om området

Dit servicekontor i nærheden
Esmark Hvide Sande
Kirkevej 6
6960 Hvide Sande
Telefon: +45 69 15 96 20
Email: hvidesande@esmark.dk
4.168
4.228
4.228
Oplistet i: OmråderÅrgabTingodden 433, 6960 Hvide Sande














































