Feriehus i Lodbjerg Hede med indhegnet terrasse
Sivsangervej 37, Lodbjerg Hede - Sommerhusnr.: K6168
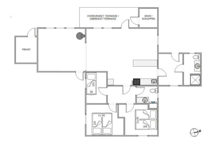
Om huset
Velkommen til ”Havbrus” – jeres feriehus på Sivsangervej 37 i Lodbjerg Hede. Her får I et charmerende fristed, hvor komfort og naturoplevelser går op i en højere enhed. På den 2.346 m² store naturgrund kan I nyde livet på den afskærmede, lukkede og delvist overdækkede terrasse. Huset blev renoveret i 2025 og byder op til 5 gæster velkommen – og jeres hund er naturligvis også inviteret med.
Hyggeligt opholdsrum og veludstyret køkken
Det veludstyrede køkken giver jer alt, hvad I skal bruge til hyggelige måltider. Opvaskemaskinen gør det nemt at rydde op, så I kan bruge tiden på samvær og hygge. I den kombinerede opholds- og spisestue skaber brændeovnen en varm og indbydende atmosfære på kolde aftener, mens varmepumpen sørger for en behagelig temperatur året rundt. Her er det let at slappe af og nyde roen. Huset præges af lyse farver, der går igen i hele huset og skaber en behagelig stemning.
Huset rummer 3 soveværelser med 2 dobbeltsenge og 1 enkeltseng, som giver alle mulighed for en god nats søvn. Badeværelset er udstyret med gulvvarme, der giver en lun start på dagen, og det samme gælder gæstetoilettet. En vaskemaskine står også til rådighed under ferien.
Skønt udeområde med plads til både børn og hund
Den indhegnede grund giver jer tryghed og mange muligheder for udeliv. Terrassen indbyder til afslapning i den friske havluft, og jeres hund kan bevæge sig frit i den sikre baghave.
Baghaven er også udstyret med en trampolin og et fodboldmål, perfekt til en fodboldkamp – måske de ældre mod de yngre. Om aftenen kan I tænde grillen og afslutte dagen i ro og hygge, også selvom vejret driller, da en del af terrassen er overdækket.
Sivsangervej 37 - fredelig ferie tæt på strand og oplevelser
Stranden ligger kun ca. 1.300 meter væk, hvor I kan gå lange ture, mærke sandet mellem tæerne og nyde den friske vestenvind – både I og jeres firbenede ven.
Indkøbsmuligheder finder I blot ca. 2.600 meter fra huset, så alt det praktiske er let ordnet. I området kan I også slå et slag på den lokale golfbane, hvor begyndere er velkomne, eller besøge stearinlys-fabrikken i Kloster og lave jeres egne lys.
- Soverum:3
- Bolig-/Grundareal:99 / 2346 m²
- Renoveret / Byggeår:2025 / 1974
Lokalkontor
Esmark Søndervig
Telefon: +45 69 15 96 11
E-mail: sondervig@esmark.dk
Nøgleudlevering
Nøglen kan afhentes fra kl. 15.00, men vi udleverer den også gerne tidligere på dagen, hvis feriehuset er klar til indflytning før tid.
Stephan GrötznerDeutschlandAI Oversat
5 ud af 5
5 ud af 5
5 out of 5
5 ud af 5
5 ud af 5
5 out of 5
Huset var som allerede beskrevet i beskrivelsen. En fordel var, at ikke kun terrassen foran, men også baghaven var indhegnet. Så vores hunde kunne også "folde sig ud" der. Vi var meget imponerede af huset. Vi følte os meget godt tilpas.
Jürgen PlischewskiDeutschlandAI Oversat
5 ud af 5
5 ud af 5
5 out of 5
5 ud af 5
5 ud af 5
5 out of 5
Meget hyggeligt hus, alt som vi kunne lide det. Dejlig grund, indhegnet
Peter KapelkeDeutschlandAI Oversat
5 ud af 5
5 ud af 5
5 out of 5
5 ud af 5
5 ud af 5
5 out of 5
Huset fandt vi i den tilstand og med det udstyr, der var beskrevet på hjemmesiden (vi har også haft andre oplevelser). Renoveringen i året 2025 er omfangsrig og gennemtænkt udført. Indretningen fandt vi ren og uden skader, og vi forlod også objektet i samme tilstand.
Indretning
Kalender
Om området

Dit servicekontor i nærheden
Esmark Søndervig
Lodbergsvej 18
6950 Ringkøbing
Telefon: +45 69 15 96 11
Email: sondervig@esmark.dk
2.668
2.668
2.668









































