Hyggeligt og velholdt feriehus med god terrasse i roligt område
Sivsangervej 16, Lodbjerg Hede - Sommerhusnr.: K6384
Om huset
Feriehuset er helt perfekt, hvis I ønsker en afslappende ferie i rolige omgivelser, men uden at der er langt til indkøb og aktiviteter – en ferie, hvor solens stråler og den friske luft nydes på terrassen, mens børnene leger ved siden af. Ferieboligen har i 2021 gennemgået en renovering og fremstår rigtig indbydende og hyggeligt. Annekset udlejes ikke med feriehuset.
Feriehuset og terrassen indbyder til afslapning og hygge
Feriehuset giver jer mulighed for at få en pause fra hverdagen og samle ny energi. Her er der nemlig plads til glemme de faste gøremål og at sætte samværet med familien i fokus. I 2021 har huset gennemgået en renovering, og overalt sørger de lyse træoverflader og smagfulde møbler for at sætte den perfekte ferieatmosfære.
I feriehuset har I et fint køkken, hvor I kan kræse lidt ekstra om feriemaden. Og herfra er der åben forbindelse til spiseafdelingen og stuen, hvor I kan hygge dig med familien – måske med et par spil eller en god film. Fra stuen har I desuden en flot udsigt ud til dejlige naturarealer, hvor de store vinduespartier inviterer naturen helt indenfor og masser af dagslys.
Sydvestvendt terrasse med fine udearealer på Sivsangervej 16
Ved feriehuset har I også en dejlig sydvendt terrasse, som kan nydes helt fra morgen til aften. Her kan I nyde solens stråler og udsigten til den smukke natur. Og mod vest er terrassen overdækket, hvilket er helt perfekt til en hyggelig grillaften i den danske sommer. I og ved feriehuset vil du sikkert nyde roen, den smukke natur og grunden, hvor der er plads til leg og boldspil med børnene. Ved huset er der gyngestativ og fodboldmål, så her kan børn og barnlige sjæle for alvor slå sig løs.
Omgivelserne er rolige og smukke – men du er stadig tæt på Søndervig
Området Lodbjerg Hede er dejligt roligt. Og da det ikke ligger direkte ved klitterne, er naturen her anderledes end andre steder på Holmsland Klit. Her er grundene omgivet at træer og buske, der giver både læ og privatliv, så I kan nyde ferien i ro og fred. De mange cykelstier i området, eksempelvis over Bagges Dæmning lægger op til, at I kan udforske de naturskønne områder på cykel.
Samtidig er der ikke langt til Søndervig – den hyggelige badeby med den gode strand og de spændende butikker og spisetider
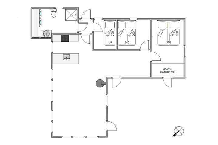
- Soverum:3
- Bolig-/Grundareal:75 / 2000 m²
- Renoveret / Byggeår:2021 / 1985
Lokalkontor
Esmark Søndervig
Telefon: +45 69 15 96 11
E-mail: sondervig@esmark.dk
Nøgleudlevering
Nøglen kan afhentes fra kl. 15.00, men vi udleverer den også gerne tidligere på dagen, hvis feriehuset er klar til indflytning før tid.
GastDeutschlandAI Oversat
5 ud af 5
5 ud af 5
super som altid hos jer!
GastDeutschlandAI Oversat
4 ud af 5
4 ud af 5
Fantastisk feriehus, alt tilstrækkeligt til stede, store og komfortable senge.
Ute FritscheDeutschlandAI Oversat
4.5 ud af 5
4.5 ud af 5
Det er et meget smukt og godt indrettet hus. Vi følte os meget godt tilpas. Køkken, badeværelse og sengene, alt var prima. Skønt hus.
GastDeutschlandAI Oversat
5 ud af 5
5 ud af 5
Helt kort: KLASSE! Jeg var meget tilfreds og har allerede booket dette lille hus igen til slutningen af august.
Marc SchröderDeutschlandAI Oversat
5 ud af 5
5 ud af 5
Feriehuset ligger for enden af Sivsangervej og har en meget stor og velholdt grund, der kun kan ses fra Klevevej. Stue-/spiseområdet er næsten helt indglasset på 3 sider, og man har en vidunderlig udsigt over haven og kan nyde stort på den store sofa. Udstyret er mere end tilstrækkeligt, alt er til stede og i meget god stand, sengen 1.80x2.00 er maksimalt behagelig.
Indretning
Kalender
Om området

Dit servicekontor i nærheden
Esmark Søndervig
Lodbergsvej 18
6950 Ringkøbing
Telefon: +45 69 15 96 11
Email: sondervig@esmark.dk
2.318
2.318
2.318









































