Fredeligt beliggende hus med garage og hund tilladt
Irisvej 13, Lodbjerg Hede - Sommerhusnr.: K6956
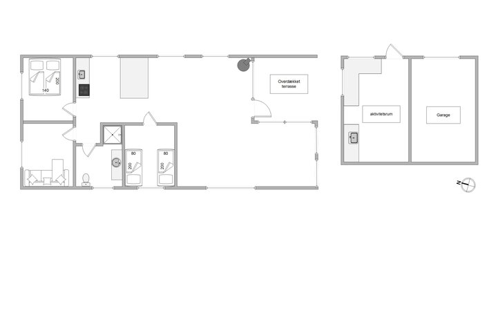
Om huset
Dette charmerende sommerhus på Irisvej 13 ligger på en fredelig grund. Her kan I tilbringe ferien med hele familien og jeres firbenede ven. Sommerhuset inviterer jer med sin velplejede grund og et aktivitetsrum med bordtennisbord til mange timers sjov. Om aftenen sørger brændeovnen for den typiske sommerhusstemning.
Sommerhus på Irisvej 13 med åbent alrum og 3 soveværelser
Hjertet i sommerhuset på Irisvej 13 er den store stue med integreret køkken og spiseplads. Det åbne koncept giver mulighed for at tilbringe tid med hele familien, selvom én måske laver mad og resten hygger sig sammen. I kan dog også lave mad sammen, hvilket også er muligt på grund af det åbne rumkoncept.
Fra det rummelige opholdsrum er der adgang til tre soveværelser og 1 badeværelse med alt nødvendigt udstyr. Soveværelserne er indrettet med forskellige behov for øje: 1 med dobbeltseng, 1 med 2 enkeltsenge og 1 med en praktisk sovesofa – ideelt til børn eller ekstra gæster.
Sommerhus med aktivitetsrum og plads til hygge
Efter en dag fyldt med oplevelser ved Vesterhavet kan I slappe af i det åbne og hyggelige opholdsrum. Tænd op i brændeovnen og nyd den varme, knitrende stemning, mens I samles til en god film eller et spil kort – den klassiske sommerhusstemning er garanteret.
I sommerhusets garage er der tænkt praktisk og sjovt. Den er delt op i to funktionelle områder: I den ene del er der plads til parkering af bil og cykler, og i den anden finder I et aktivitetsrum med bordtennisbord, hvor I kan udfordre hinanden i underholdende kampe hele ferien igennem.
Her finder I også vaskemaskine, tørretumbler og et ekstra køle-fryseskab – perfekte faciliteter til en komfortabel og afslappende ferie for hele familien.
Fredfyldt beliggende sommerhus med stor terrasse
Dette sommerhus ligger for enden af en blind vej, og den velplejede græsplæne er omgivet af træer. Her kan I læne jer tilbage og nyde jeres ferie. Den rummelige terrasse er højdepunktet udenfor. Her vil alle finde deres plads, og de tilhørende havemøbler indbyder til udstrakt solbadning. For dem, der foretrækker de skyggefulde steder, byder terrassen også på et overdækket område, som endda er afskærmet, så I kan nyde den friske luft selv i blæsende vejr.
Den velplejede græsplæne vil være et højdepunkt for dine børn og dit firbenede familiemedlem. Her kan dine børn og din hund boltre sig, spille bold og udforske ejendommen. Efter en begivenhedsrig dag på den danske vestkyst kan I slutte dagen af med en hyggelig grillaften om aftenen.
Sommerhus tæt på Vesterhavet og indkøb – perfekt beliggenhed til jeres ferie
Sommerhuset ligger kun 1.700 meter fra Vesterhavet, hvor I kan nyde lange gåture i det bløde sand eller tage en forfriskende dukkert – uanset årstiden. Den korte afstand til havet gør det nemt at få naturoplevelser ind i ferien hver dag.
Udover de naturskønne omgivelser byder området også på gode praktiske forhold. Der er kun 2.000 meter til nærmeste supermarked, som har et bredt udvalg af dagligvarer – så I hurtigt og nemt kan handle ind til både morgenmad og grillmiddage.
- Soverum:3
- Bolig-/Grundareal:70 / 2300 m²
- Renoveret / Byggeår:2013 / 1984
Lokalkontor
Esmark Søndervig
Telefon: +45 69 15 96 11
E-mail: sondervig@esmark.dk
Nøgleudlevering
Nøglen kan afhentes fra kl. 15.00, men vi udleverer den også gerne tidligere på dagen, hvis feriehuset er klar til indflytning før tid.
Janina EggersDeutschlandAI Oversat
5 ud af 5
5 ud af 5
Feriehuset er super hyggeligt og moderne indrettet, køkkenet er meget godt udstyret, alt hvad man har brug for er til stede. Haven er skøn og stor, og grunden grænser direkte op til en lille vandresti, perfekt for os med hund. Vi ville bestemt leje huset igen.
Joachim HartwichDeutschlandAI Oversat
4.5 ud af 5
4.5 ud af 5
Det er et virkelig meget hyggeligt sommerhus med alt, hvad man har brug for, alt var til stede.
Stefan SchurigDeutschlandAI Oversat
5 ud af 5
5 ud af 5
Det er et kærligt og fuldt udstyret sommerhus, der giver en fornemmelse af at være hjemme.
GastDeutschlandAI Oversat
4.5 ud af 5
4.5 ud af 5
Dejligt hus, vi følte os meget godt tilpas, rolig beliggenhed
Julia BartkowiakDeutschlandAI Oversat
4.5 ud af 5
4.5 ud af 5
Et lille hyggeligt sommerhus. For 4 personer er huset meget godt udstyret og tilstrækkeligt. Det eneste er, at sengene er ret smalle. Når det kommer til udstyr, var alt der og i god stand. Familiehunden føler sig også meget godt tilpas der gennem den smukke have og direkte adgang til vandrestien.
Julia KoldeDeutschlandAI Oversat
4 ud af 5
4 ud af 5
Lille sommerhus, som helt sikkert er fantastisk om sommeren på grund af den åbne glasfront. Garagen er super, og bordtennisbordet er et ekstra plus. Samlet set er værelserne hyggeligt, nyttigt og praktisk indrettet. Køkkenet er udstyret med alt muligt. Vi manglede intet! I soveværelserne er sengene mindre, det bør man huske på ved reservationen. Badeværelset var i god stand, kun bruseren var meget smal, og der var ingen stikkontakt.
Hendrikus WeekenDeutschlandAI Oversat
5 ud af 5
5 ud af 5
Dejligt, roligt beliggende feriehus. Perfekt til forældre med barn og hund.
Christian EmmeDeutschlandAI Oversat
4.5 ud af 5
4.5 ud af 5
Meget hyggelig rolig beliggenhed, i huset er alt hvad man behøver
GastDeutschlandAI Oversat
5 ud af 5
5 ud af 5
Roligt og hyggeligt indrettet feriehus (perfekt egnet til 4 personer) med stor solrig græsplæne og overdækket terrasse, beliggende for enden af en blind vej. For sportsentusiaster står der i annekset en bordtennisplade med bats og bolde til rådighed. Ved grunden går en lille sti forbi, men grundens beplantning gør det på ingen måde forstyrrende. Vi var på besøg i huset fra 22.06.2024 til 06.07.2024 og følte os meget, meget godt tilpas. Huset, området, de mulige aktiviteter i nærheden og feriehusudlejeren "Esmark" kan vi kun anbefale!
Indretning
Kalender
Om området

Dit servicekontor i nærheden
Esmark Søndervig
Lodbergsvej 18
6950 Ringkøbing
Telefon: +45 69 15 96 11
Email: sondervig@esmark.dk
2.158
2.158
2.158
Oplistet i: OmråderLodbjerg HedeIrisvej 13, 6950 Ringkøbing





































