Smagfuldt indrettet sommerhus på Lodbjerg Hede med udestue
Brunbjergvej 64, Lodbjerg Hede - Sommerhusnr.: KW1375
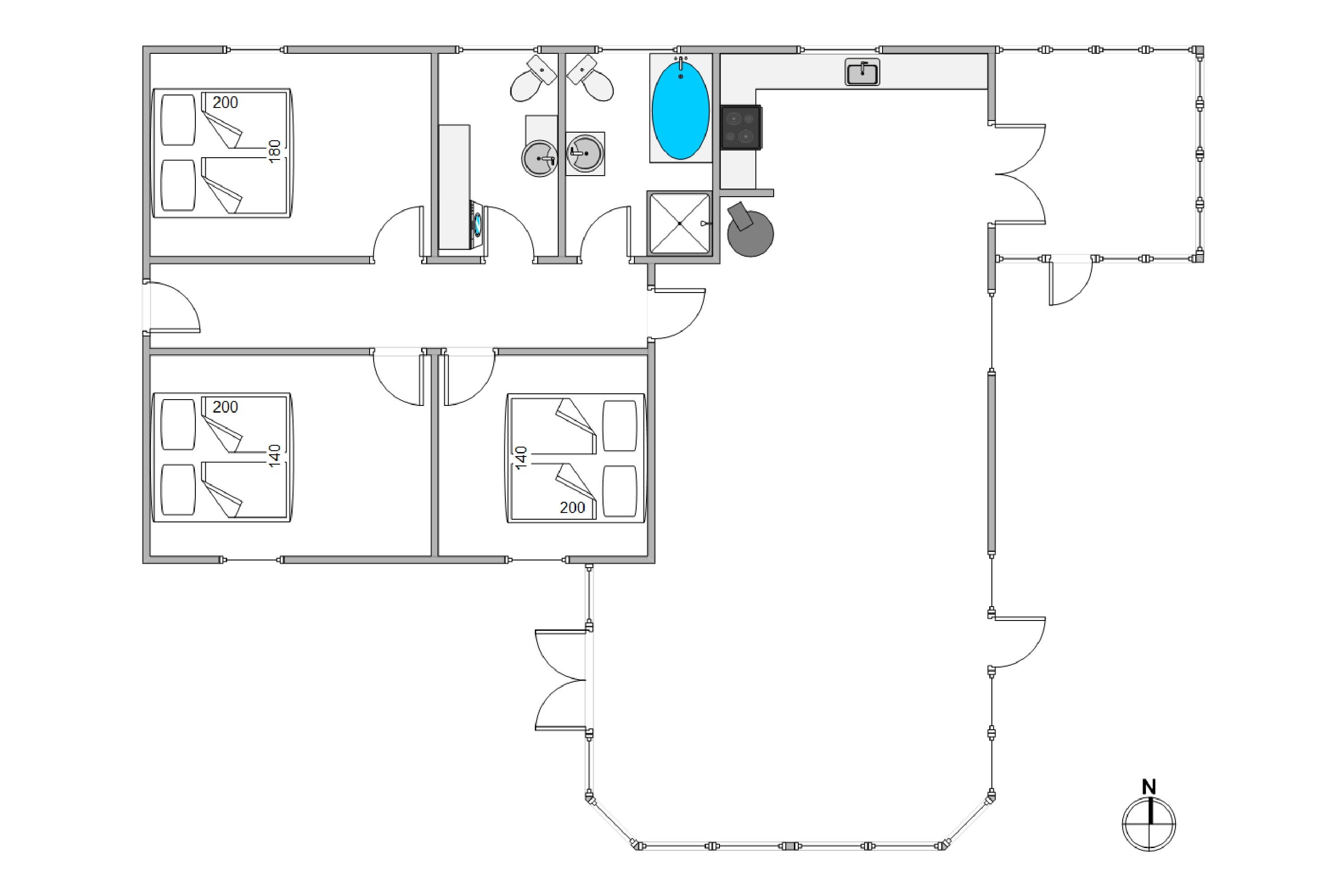
Om huset
Skal der for alvor skrues op for familiehyggen med en ferie i det vestjyske, så skal I tage et kig på dette familieskønne sommerhus på Brunbjergvej 64 i Lodbjerg Hede. I sommerhuset er der virkelig gjort meget ud af at give børnene de bedste muligheder for leg og aktivitet, og I finder blandt andet legerum i sommerhuset og legeredskaber i haven.
Smagfuldt indrettet sommerhus, der bader i sollys
I vil hurtig få fornemmelse af, at der er tænkt over at få naturen ind i sommerhuset på Lodbjerg Hede. Det er nemlig udstyret med et væld af vinduespartier, der inviterer solens stråler helt indenfor og bader opholdsrummene i solskin. Det er virkelig balsam for sjælen.
Også sommerhusets interiør stemmer overens med denne vision. Møbler, vægge og genstande er smagfulde i en farvepalette af sorte, hvide og grå nuancer, som I uden tvivl vil føle jer hjemme i. I opholdsrummets stueafdeling er der god plads til at nyde den smukke udsigt. Møblerne er heldigvis også så behagelige, at I kan smække benene op, læne jer tilbage og nyde en god bog – eller tage en velfortjent powernap.
Foruden ”legeværelset” finder I yderligere 2 værelser i sommerhuset, der begge er indrettet med dobbeltsenge, som fremstår lyse og indbydende. Herudover er der to toiletter, hvoraf det ene er udstyret med både bruseniche og badekar. Og mon ikke sidstnævnte vil være et stort hit blandt familiens yngste?
Brunbjergvej 64 - et sommerhus på Lodbjerg Hede med fokus på børnene
I sommerhuset på Brunbjergvej er der virkelig tænkt på børnenes behov, så der er plads til leg og aktivitet. I sommerhuset finder I blandt andet et værelse med køjeseng og masser af legetøj, spil, bamser og meget mere. Et sandt mekka for børnene.
Men det er ikke kun indenfor, at der er tænkt på børnene. Den store naturgrund imødekommer også børnenes behov. Den er blandt andet indrettet med basketballnet og sandkasse. Derudover indbyder den store grønne plæne også til at blive indtaget af hvinende børn, der leger tagfat eller hygger sig med en vandkamp.
Dejlig afskærmet naturgrund, ophøjet terrasse og udestue
Den store grund, der omkranser sommerhuset på Brunbjergvej 64, er også et kapitel for sig. Her kan I virkelig nyde naturens gaver på allernærmeste hånd. Og I kan selv vælge, om det skal ske fra plænen, den flotte terrasse eller den praktiske udestue. Uanset hvor I vælger at slå jer ned, kan I gøre brug af de behagelige ligge- og havemøbler, der er til rådighed.
Vesterhav og vandreruter i Lodbjerg Hede
Fra sommerhuset er der blot 1.750 meter til Vesterhavet, som indbyder til en frisk dukkert – uanset vejr og årstid. Derudover er der kun 3.000 meter til det nærmeste supermarked, så de praktiske indkøb nemt kan klares
Lodbjerg Hede og Klitplantagen byder desuden på skønne naturoplevelser med fem afmærkede vandreruter i varieret terræn – der er noget for enhver smag.
- Soverum:3
- Bolig-/Grundareal:105 / 2450 m²
- Renoveret / Byggeår:2011 / 1972
Lokalkontor
Esmark Søndervig
Telefon: +45 69 15 96 11
E-mail: sondervig@esmark.dk
Nøgleudlevering
Nøglen kan afhentes fra kl. 15.00, men vi udleverer den også gerne tidligere på dagen, hvis feriehuset er klar til indflytning før tid.
Margit ScharnbergDeutschlandAI Oversat
4.5 ud af 5
4.5 ud af 5
4.5 out of 5
4.5 ud af 5
4.5 ud af 5
4.5 out of 5
Huset har en meget smuk og lys stue. Køkkenet er fuldt udstyret. I et af soveværelserne var der desværre ikke noget skab.
Walter LudwigDeutschlandAI Oversat
4.5 ud af 5
4.5 ud af 5
4.5 out of 5
4.5 ud af 5
4.5 ud af 5
4.5 out of 5
Så vidt er sommerhuset i orden, vi har følt os meget godt tilpas.
Kerstin FritzscheDeutschlandAI Oversat
4.5 ud af 5
4.5 ud af 5
4.5 out of 5
4.5 ud af 5
4.5 ud af 5
4.5 out of 5
Et fantastisk sommerhus i en smuk rolig beliggenhed. Her hører man kun fuglene kvidre. Perfekt til at koble af, slappe af og samle kræfter. I huset er der alt, hvad man har brug for. Sengene garanterer en afslappende søvn. Noget er dog præget af slid. For eksempel beskadigede fliser i køkkenet. Da huset også tillader hunde, virker et tæppe samt en stofforretning af sofabetræk ikke så velegnet her. Jeg vil gerne komme igen.
Marion MüllerDeutschlandAI Oversat
4 ud af 5
4 ud af 5
4 out of 5
4 ud af 5
4 ud af 5
4 out of 5
Det er et meget smukt feriehus med næsten rundt omkring terrasse, så der altid er en solplads eller vindbeskyttelse og en overdækket terrasse til rådighed. Stuen med åbent køkken og spiseplads er lysfyldt takket være vinduesfronten i spiseområdet.
Kerstin TietzeDeutschlandAI Oversat
5 ud af 5
5 ud af 5
5 out of 5
5 ud af 5
5 ud af 5
5 out of 5
Huset er meget pænt, og køkkenet er virkelig godt udstyret. Der er nok service til ikke at skulle tænde opvaskemaskinen dagligt. Vi har følt os meget godt tilpas.
Ludwig FranckDeutschlandAI Oversat
5 ud af 5
5 ud af 5
5 out of 5
5 ud af 5
5 ud af 5
5 out of 5
Det er et hyggeligt indrettet hus, ideelt for hundeejere eller med børn. Desuden kan man enten opholde sig i vinterhaven eller på de mange siddepladser rundt om huset. Kom ned i gear og nyd det, hyggely
Verena GaedekeDeutschlandAI Oversat
5 ud af 5
5 ud af 5
5 out of 5
5 ud af 5
5 ud af 5
5 out of 5
Beliggenheden er fantastisk, hvis man søger ro, er dette stedet. Vi har været der 2 gange og ville gøre det igen.
Sonny-Heinz TruxDeutschlandAI Oversat
4.5 ud af 5
4.5 ud af 5
4.5 out of 5
4.5 ud af 5
4.5 ud af 5
4.5 out of 5
Den, der ønsker en stille beliggenhed, rummelig men alligevel moderne bolig for en fredelig og afslappende tid på den danske vestkyst, er godt tjent med dette hus. Huset selv tilbyder en række beskæftigelses- og afslapningsmuligheder som spil, tv, grill eller en stor terrasse.
GastDeutschlandAI Oversat
4.5 ud af 5
4.5 ud af 5
4.5 out of 5
4.5 ud af 5
4.5 ud af 5
4.5 out of 5
Et hyggeligt feriehus til op til 6 personer, med 3 soveværelser og 2 badeværelser/WC'er, beliggende på en stor grund med gammel bevoksning. Den rummelige stue og spisestue med tilstødende køkken gør opholdet i huset meget behageligt, når vejret ikke arter sig.
Indretning
Kalender
Om området

Dit servicekontor i nærheden
Esmark Søndervig
Lodbergsvej 18
6950 Ringkøbing
Telefon: +45 69 15 96 11
Email: sondervig@esmark.dk
2.718
2.718
2.718


















































