Centralt beliggende sommerhus med udendørs sauna og spa
Midtbyvej 9, Blåvand - Sommerhusnr.: 60162
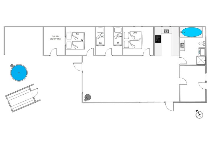
Om huset
Dette centralt beliggende sommerhus i Blåvand er opført i 2019 og indeholder flere gode faciliteter. I kan blandt andet nyde ferien i husets udendørs sauna eller indendørs spabad. Huset har plads til 6 personer, og 1 hund er også velkommen.
Central beliggenhed og hyggelig indretning
På Midtbyvej 9 på en central og stadig rolig beliggenhed finder I dette sommerhus, som er renoveret i 2019. Huset er oplagt både til en ferie for den lille familie eller en venneflok.
Sommerhuset er på 95 kvadratmeter og har i sin indretning grundlæggende det, man har brug for til en hyggelig ferie med et godt og veludstyret køkken og i stuen foran den knitrende brændeovn en hjørnesofa med plads til jer. Den energibesparende varmepumpe sørger for, at I hver dag har en behagelig rumtemperatur i huset, og den lille hems med PlayStation og sækkestol bliver et sikkert hit blandt børnene.
Wellness med spa og udendørs sauna
Holder I af wellness, så har I flere muligheder for at forkæle jer selv i sommerhuset. På badeværelset står et spabad til 2 personer, og fra terrassen er der adgang til den lækre udendørs saunatønde, som ligger i forlængelse af den lukkede terrasse og kan bruges hele året rundt.
Lukket, delvist overdækket terrasse og egen legeplads
Den store, lukkede og delvist overdækkede terrasse giver jer mulighed for at nyde den friske luft i alle årets måneder. Her kan I finde ly og læ, og de yngste feriegæster kan boltre sig på husets private 'legeplads' med rutsjebane, klatretårn og gynger.
Der er kort vej til Blåvands centrum, hvor der venter jer et godt udvalg af shoppemuligheder, restauranter og caféer. Derudover byder Blåvand på flere forskellige attraktioner; blandt andet minigolf, Blåvandshuk Fyr, zoologisk have og det spændende bunkermuseum Tirpitz. Selvfølgelig er det også oplagt at besøge Blåvands rene badestrand, der indbyder til lange gåture langs vandet med børnene og hunden.
- Soverum:3
- Bolig-/Grundareal:95 / 751 m²
- Renoveret / Byggeår:2019 / 1957
Lokalkontor
Esmark Blåvand
Telefon: +45 69 15 96 16
E-mail: blaavand@esmark.dk
Nøgleudlevering
Nøglen kan afhentes fra kl. 15.00, men vi udleverer den også gerne tidligere på dagen, hvis feriehuset er klar til indflytning før tid.
Ralf KölbelDeutschlandAI Oversat
4.5 ud af 5
4.5 ud af 5
4.5 out of 5
4.5 ud af 5
4.5 ud af 5
4.5 out of 5
Huset var pænt og godt indrettet. Hvad jeg savnede var information om hvordan man starter fjernsynet og andre elektriske apparater.
Lars BüsingDeutschlandAI Oversat
4.5 ud af 5
4.5 ud af 5
4.5 out of 5
4.5 ud af 5
4.5 ud af 5
4.5 out of 5
Rent og hyggeligt sommerhus, med alt hvad man har brug for til et par dejlige dage i Danmark. Sauna og badetønde på en helt lukket terrasse. Fredeligt beliggende, næsten for enden af en blind vej. Centrum af Blåvand kan dog stadig hurtigt nås til fods.
Daniel LichownikDeutschlandAI Oversat
4 ud af 5
4 ud af 5
4 out of 5
4 ud af 5
4 ud af 5
4 out of 5
Sommerhuset er ok, men der skal gøres noget ved det. Opvaskemaskine badeværelse. Men ellers havde vi en dejlig ferie, og vi manglede intet.
Jenny BemowskiDeutschlandAI Oversat
4 ud af 5
4 ud af 5
4 out of 5
4 ud af 5
4 ud af 5
4 out of 5
„Feriehuset er velholdt og tilbyder alt, hvad man har brug for til et behageligt ophold. Udstyret er funktionelt, og rummene er lyse og rene.“
GastDeutschlandAI Oversat
3.5 ud af 5
3.5 ud af 5
3.5 out of 5
3.5 ud af 5
3.5 ud af 5
3.5 out of 5
Skønt feriehus til 4-6 personer, fantastisk beliggenhed nær byen
Silja WarfelmannDeutschlandAI Oversat
4.5 ud af 5
4.5 ud af 5
4.5 out of 5
4.5 ud af 5
4.5 ud af 5
4.5 out of 5
Dejligt lille hus til en rolig ferie. Perfekt for os som par med hund og udstyret med alt nødvendigt. Opvaskemaskinen er ret gammel og rengør dårligt. PlayStation fungerer ikke. Nøjagtig vejledning til affaldssortering bedes venligst leveret.
Kerstin HillerDeutschlandAI Oversat
0.5 ud af 5
0.5 ud af 5
0.5 out of 5
0.5 ud af 5
0.5 ud af 5
0.5 out of 5
Et sommerhus til ingen særlige krav!!! (Men alt for dyrt!) Saunaen var dejlig, og hvis man har godt vejr, behøver man ikke opholde sig i huset! Man er hurtigt på shopping-gaden, hvor man kan bruge penge, men det tager lang tid at komme til stranden, bil er nødvendig! Desværre kan vi ikke anbefale huset, for dårlige senge, meget små og trange!
GastDeutschlandAI Oversat
4.5 ud af 5
4.5 ud af 5
4.5 out of 5
4.5 ud af 5
4.5 ud af 5
4.5 out of 5
Smagfuld, super smukt indrettet En ægte oase af velvære
Julia DixDeutschlandAI Oversat
5 ud af 5
5 ud af 5
5 out of 5
5 ud af 5
5 ud af 5
5 out of 5
Meget rent og velholdt sommerhus. Huset er uden have, hvilket ikke generede os. Til gengæld med generøs terrasse. Huset mangler intet. Vi følte os meget godt tilpas.
Jessica BuchholzDeutschlandAI Oversat
5 ud af 5
5 ud af 5
5 out of 5
5 ud af 5
5 ud af 5
5 out of 5
Et dejligt feriehus for små familier eller par med hund. På den indhegnede terrasse kan hunden frit løbe rundt. Udendørs-Whirlpool og sauna hjælper med at slappe af. Feriehuset er udstyret med alt det nødvendige. Vandforbrug aflæses automatisk, så man kun skal angive strømmen ved ankomst og afrejse i online-portalen.
Jörg RedlichDeutschlandAI Oversat
4.5 ud af 5
4.5 ud af 5
4.5 out of 5
4.5 ud af 5
4.5 ud af 5
4.5 out of 5
Godt sommerhus til en familie med maks. 2 børn i meget rolige omgivelser. Alt det nødvendige for en ferie er der. Hundeskov i nærheden. Til stranden kan man også gå, men det er bedre at bruge cykel. Nogle småting kan forbedres, men dette er ikke ment som en kritik. Manglende madrasser til solvognene blev skaffet straks. Mange tak for det. Det er også grunden til, at vi altid booker hos Esmark igen.
Indretning
Kalender
Om området

Dit servicekontor i nærheden
Esmark Blåvand
Blåvandvej 1
6857 Blåvand
Telefon: +45 69 15 96 16
Email: blaavand@esmark.dk
Beliggenhed & landskabet
Blåvand er Danmarks vestligste punkt og byder på en god blanding af natur og oplevelser. Den sydlige strand er meget børnevenlig og ofte mere rolig takket være Horns Rev, mens Vesterhavet mod nord bruser med store bølger og mere rå natur. Mange sommerhuse ligger i flot natur med hede, klitter eller skov, og andre ligger midt i feriebyen, hvor der er en kort gåtur til butikker og restauranter.
Indkøb og shopping
Blåvand er et rigtigt dejligt sted, hvis man gerne vil gå på opdagelse i butikker. Hovedgaden summer af liv og lokker med alt fra modebutikker og dansk design til specialforretninger med outdoor-udstyr. Det bedste af det hele? Mange af butikkerne og de store supermarkeder (Spar, Meny og Netto) har åbent næsten hele året rundt. Vil du på en lille shoppetyr, er der ikke langt til handelsbyen Varde (ca. 22 km) og Esbjerg (ca. 36 km) med Danmarks længste gågade og det store shoppingcenter “Broen”.
Restauranter og caféer
I Blåvand er der madoplevelser for en hver smag. Du kan for eksempel nyde friskfanget fisk hos „Blåvand Fiskerestaurant“, finde spændende specialiteter hos „Hr. Skov“ eller nyde en middag med udsigt over havet hos „Høfde 4“. Har du mere lyst til hyggeligt samvær og god stemning, er ”Biergarten Blåvand” et oplagt sted at besøge, især når der er arrangementer på programmet. Hos „Wine & Delights“ kan du blandt andet nyde gode vine og lækker tapas. Og så skal du selvfølgelig ikke gå glip af en klassisk softice eller gammeldags vaffelis i en af byens hyggelige caféer.
Aktiv ferie og fritid
Når du holder ferie i Blåvand, kan du nyde naturen bedst på de lange sandstrande eller tage på tur i Bordrup, Oksby og Ho Klitplantage (ca. 3–8 km). Kan du godt lide en god gåtur, kan du nyde stilheden på skovenes stier. Og hvis du er mere til cykling, finder du nogle af Danmarks bedste mountainbike-ruter i Bordrup Plantage. Hvis du elsker at en god konkurrence, så er en tur på den førsteklasses adventure-golfbane hos West Coast Minigolf i hjertet af byen et absolut hit.
Seværdigheder
Områdets vartegn er Blåvandshuk Fyr, hvorfra du kan nyde den flotte panoramaudsigt ud over havet og hele kysten. Hvis du er nysgerrig på historie, skal du ikke snyde dig selv or et besøg på Tirpitz (ca. 3 km), som ligger gemt i klitterne, eller museet „FLUGT“ i Oksbøl (ca. 14 km) – begge museer er spændende for børn og voksne i alle aldre.
Ferie med hund
De firbenede familiemedlemmer er mere end velkomne i Blåvand! I lavsæsonen (oktober-marts) må hunde løbe frit på stranden, og hele året rundt kan I besøge den indhegnede hundeskov i Oksby Plantage (ca. 4 km), hvor hunden trygt kan løbe og lege uden snor.
Sjov for hele familien
I Blåvand keder man sig aldrig. Besøg Blåvand Zoo og se de flotte hvide løver, støb dine egne lys hos Blåvand Lys eller se, hvordan man laver lækre bolcher hos Blåvand Bolcher. Har du lyst til mere leg og sjov, kan du besøge SportPark Blåvandshuk i Oksbøl (ca. 14 km), Hvidbjerg Strand Badeland og det store legeland „Play City“. TIP: Det verdensberømte LEGOLAND® i Billund (ca. 70 km) ligger kun en times kørsel væk.
5.008
5.008
5.008
Oplistet i: OmråderBlåvandMidtbyvej 9, 6857 Blåvand













































