Moderne feriehus i Blåvand med infrarød sauna og udendørs spa
Gl. Skolevej 2D, Blåvand - Sommerhusnr.: 60215
Om huset
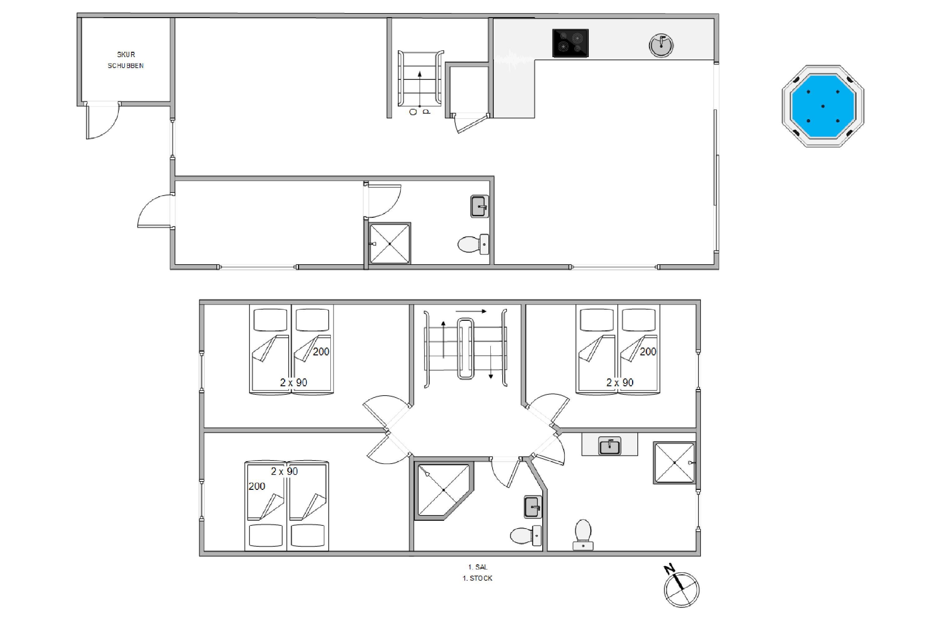
På Gl. Skolevej 2D, cirka 5 minutters gang fra Blåvands centrum, ligger dette flotte rækkehus, der er opført i 2019. Den moderne og stilfulde indretning rummer plads til 6 personer, og hunden er også velkommen. Ferieboligen er udstyret med hele 3 badeværelser, det ene med infrarød sauna, og på den lukkede terrasse er der udendørs spabad.
Femstjernet rækkehus med moderne indretning, 3 badeværelser og infrarød sauna
Dette femstjernede rækkehus i Blåvand er et oplagt valg til den stilbevidste feriegæst, der sætter pris på kvalitet og moderne interiør. Ferieboligen råder over i alt 136 kvadratmeter fordelt på 2 etager, og det har en masse lækre faciliteter, der er værd at fremhæve.
Ferieboligens 3 soveværelser er alle indrettet med dobbeltseng og eget fjernsyn, og der er lavet en ekstra hems til ungerne med legesager og madrasser. Dertil kommer hele 3 badeværelser, det ene sågar med en skøn infrarød sauna, hvor I kan få varmen efter en gåtur i den friske havluft.
Entréen er udstyret med både vaskemaskine og tørretumbler, og der er selvfølgelig også sørget for en opvaskemaskine i køkkenet, så I slipper for at bruge den dyrebare ferietid på oprydning.
Lukket terrasse med gasgrill og udendørs spabad, kun 500 meter til Blåvands centrum
Fra stuen er der udgang til den lukkede terrasse, hvor havemøbler, liggestole og en god gasgrill står klar, så I rigtig kan nyde de solrige dage. Terrassen gemmer desuden på endnu en lækker wellnessfacilitet, nemlig et udendørs spabad. Markisen må ikke benyttes. Et varmt boblebad under åben himmel kan man vel altid bruge, ligegyldigt hvornår på året, man holder ferie?
Med ferieadresse på Gl. Skolevej bor I kun 500 meter fra Blåvands centrum, der rummer en bred vifte af butikker og spisesteder. Kig for eksempel ind i Blåvands berømte bolsjekogeri, eller køb en lækker softice hos en af de mange iscaféer.
Blåvands smukke badestrand ligger mindre end 1 kilometer væk og kan både nås på gåben og i bil. Stranden byder på god afveksling og fantastiske naturoplevelser året rundt, og også hunden vil helt sikkert elske at kunne snuse rundt i sandet eller dyppe poterne i havet.
Diverse aktiviteter som bunkermuseet Tirpitz og Blåvands Mini Zoo ligger kun en lille køretur væk.
- Soverum:3
- Bolig-/Grundareal:136 / 200 m²
- Byggeår:2019
Lokalkontor
Esmark Blåvand
Telefon: +45 69 15 96 16
E-mail: blaavand@esmark.dk
Nøgleudlevering
Nøglen kan afhentes fra kl. 15.00, men vi udleverer den også gerne tidligere på dagen, hvis feriehuset er klar til indflytning før tid.
GastDeutschlandAI Oversat
4.5 ud af 5
4.5 ud af 5
4.5 out of 5
4.5 ud af 5
4.5 ud af 5
4.5 out of 5
Feriehuset har alt, hvad man har brug for til en afslappende tid i Blåvand. I spabadet/saunaen kan man slappe fremragende af. Og en udflugt til stranden eller byen er også altid dejlig.
Jette VinterDanmark
5 ud af 5
5 ud af 5
5 out of 5
5 ud af 5
5 ud af 5
5 out of 5
Et meget skønt og dejligt hus. Beskrivelse og billeder passer med det man ankommer til. Rengøring og inventar var i top. God afstand til indkøb og shopping Vil klart komme i dette hus igen og anbefaler gerne det gerne til andre også esmark som udlejer har været fantastisk.
GastDeutschlandAI Oversat
5 ud af 5
5 ud af 5
5 out of 5
5 ud af 5
5 ud af 5
5 out of 5
Huset med inventaret ser virkelig ud, som det er afbildet på hjemmesiden. 3 soveværelser med hver en almindelig stor dobbeltseng og fjernsyn, hems med 2 madrasser og legeområde til små børn, stort køkken med spiseplads og en opholdsområde. På terrassen findes en whirlpool, gasgrill og havemøbler. Terrassen er indhegnet. Det er tilladt at medbringe en hund.
Torsten FischerDeutschlandAI Oversat
5 ud af 5
5 ud af 5
5 out of 5
5 ud af 5
5 ud af 5
5 out of 5
Moderne indrettet feriehus med... ...3 soveværelser med hver en dobbeltseng, i soveværelserne er der tv ...3 badeværelser med hver 1 toilet og 1 bruser, et badeværelse har endda en infrarød sauna ...et godt udstyret køkken med tv, tilstrækkeligt med service, glas og bestik ...en udendørs whirlpool ...en stue med hjørnesofa (læder), to lænestole og stort tv Huset ligger tæt på byens centrum og ikke langt fra Nordsøen (Vadehavet), alt kan nås til fods. Det er et rækkehus, og hunde er velkomne. Det ville være rart, hvis... ...man kunne åbne vinduesvæggen til gården fuldstændigt. (Det var desværre ikke muligt, da der mangler håndtag.) ...man kunne køre markisen ud. (Det var desværre ikke muligt, vi fandt ingen knapper og heller ingen vejledning til det.)
Heiko PieperDeutschlandAI Oversat
5 ud af 5
5 ud af 5
5 out of 5
5 ud af 5
5 ud af 5
5 out of 5
Et smukt sommerhus for hele familien.
Bo GerlachDanmark
4 ud af 5
4 ud af 5
4 out of 5
4 ud af 5
4 ud af 5
4 out of 5
Huset ligger rigtig godt i byen med adgang til indkøb meget tæt på og byen indenfor 5 min gang Køkken Inventar hvorfor er der kun 4 æggebærer? Stole i stuen er dårlige at sidde i. Topmadras i sengene vil øge komfort
Sebastian HerbersDeutschlandAI Oversat
5 ud af 5
5 ud af 5
5 out of 5
5 ud af 5
5 ud af 5
5 out of 5
Sommerhuset er super moderne, rent og absolut anbefalelsesværdigt. Nærheden til centrum og indkøbsmulighederne er super.
Tina Stokholm AndersenDanmark
5 ud af 5
5 ud af 5
5 out of 5
5 ud af 5
5 ud af 5
5 out of 5
Så fint et hus med god indretning til en stor familie. Køkken er veludstyret og med en stor grill. Spaen er vidunderlig nu det danske vejr er noget af en joker.
Madlen MangoldDeutschlandAI Oversat
4.5 ud af 5
4.5 ud af 5
4.5 out of 5
4.5 ud af 5
4.5 ud af 5
4.5 out of 5
Sommerhuset er meget smukt med tilstrækkelig plads. Selvom det ligger lige ved vejen, er der næsten ingen vejstøj at høre. Udendørsområdet omkring spabadet kunne være lidt mere plejet. Køkkenudstyret er i top.
GastDeutschlandAI Oversat
4.5 ud af 5
4.5 ud af 5
4.5 out of 5
4.5 ud af 5
4.5 ud af 5
4.5 out of 5
Meget smukt nyere ferie-rækkehus. Moderne indrettet med meget komfort. 3 badeværelser! Udendørs whirlpool, infrarød kabine, 4x TV, spillerum for børn... osv. Meget veludstyret køkken med omfattende service.
Indretning
Kalender
Om området

Dit servicekontor i nærheden
Esmark Blåvand
Blåvandvej 1
6857 Blåvand
Telefon: +45 69 15 96 16
Email: blaavand@esmark.dk
Beliggenhed & landskabet
Blåvand er Danmarks vestligste punkt og byder på en god blanding af natur og oplevelser. Den sydlige strand er meget børnevenlig og ofte mere rolig takket være Horns Rev, mens Vesterhavet mod nord bruser med store bølger og mere rå natur. Mange sommerhuse ligger i flot natur med hede, klitter eller skov, og andre ligger midt i feriebyen, hvor der er en kort gåtur til butikker og restauranter.
Indkøb og shopping
Blåvand er et rigtigt dejligt sted, hvis man gerne vil gå på opdagelse i butikker. Hovedgaden summer af liv og lokker med alt fra modebutikker og dansk design til specialforretninger med outdoor-udstyr. Det bedste af det hele? Mange af butikkerne og de store supermarkeder (Spar, Meny og Netto) har åbent næsten hele året rundt. Vil du på en lille shoppetyr, er der ikke langt til handelsbyen Varde (ca. 22 km) og Esbjerg (ca. 36 km) med Danmarks længste gågade og det store shoppingcenter “Broen”.
Restauranter og caféer
I Blåvand er der madoplevelser for en hver smag. Du kan for eksempel nyde friskfanget fisk hos „Blåvand Fiskerestaurant“, finde spændende specialiteter hos „Hr. Skov“ eller nyde en middag med udsigt over havet hos „Høfde 4“. Har du mere lyst til hyggeligt samvær og god stemning, er ”Biergarten Blåvand” et oplagt sted at besøge, især når der er arrangementer på programmet. Hos „Wine & Delights“ kan du blandt andet nyde gode vine og lækker tapas. Og så skal du selvfølgelig ikke gå glip af en klassisk softice eller gammeldags vaffelis i en af byens hyggelige caféer.
Aktiv ferie og fritid
Når du holder ferie i Blåvand, kan du nyde naturen bedst på de lange sandstrande eller tage på tur i Bordrup, Oksby og Ho Klitplantage (ca. 3–8 km). Kan du godt lide en god gåtur, kan du nyde stilheden på skovenes stier. Og hvis du er mere til cykling, finder du nogle af Danmarks bedste mountainbike-ruter i Bordrup Plantage. Hvis du elsker at en god konkurrence, så er en tur på den førsteklasses adventure-golfbane hos West Coast Minigolf i hjertet af byen et absolut hit.
Seværdigheder
Områdets vartegn er Blåvandshuk Fyr, hvorfra du kan nyde den flotte panoramaudsigt ud over havet og hele kysten. Hvis du er nysgerrig på historie, skal du ikke snyde dig selv or et besøg på Tirpitz (ca. 3 km), som ligger gemt i klitterne, eller museet „FLUGT“ i Oksbøl (ca. 14 km) – begge museer er spændende for børn og voksne i alle aldre.
Ferie med hund
De firbenede familiemedlemmer er mere end velkomne i Blåvand! I lavsæsonen (oktober-marts) må hunde løbe frit på stranden, og hele året rundt kan I besøge den indhegnede hundeskov i Oksby Plantage (ca. 4 km), hvor hunden trygt kan løbe og lege uden snor.
Sjov for hele familien
I Blåvand keder man sig aldrig. Besøg Blåvand Zoo og se de flotte hvide løver, støb dine egne lys hos Blåvand Lys eller se, hvordan man laver lækre bolcher hos Blåvand Bolcher. Har du lyst til mere leg og sjov, kan du besøge SportPark Blåvandshuk i Oksbøl (ca. 14 km), Hvidbjerg Strand Badeland og det store legeland „Play City“. TIP: Det verdensberømte LEGOLAND® i Billund (ca. 70 km) ligger kun en times kørsel væk.
5.278
5.278
5.278
Oplistet i: OmråderBlåvandGl. Skolevej 2D, 6857 Blåvand





















































