Moderne poolhus tæt på stranden med luksus-udendørsfaciliteter
Sønder-Vasevej 2B, Blåvand - Sommerhusnr.: 60478
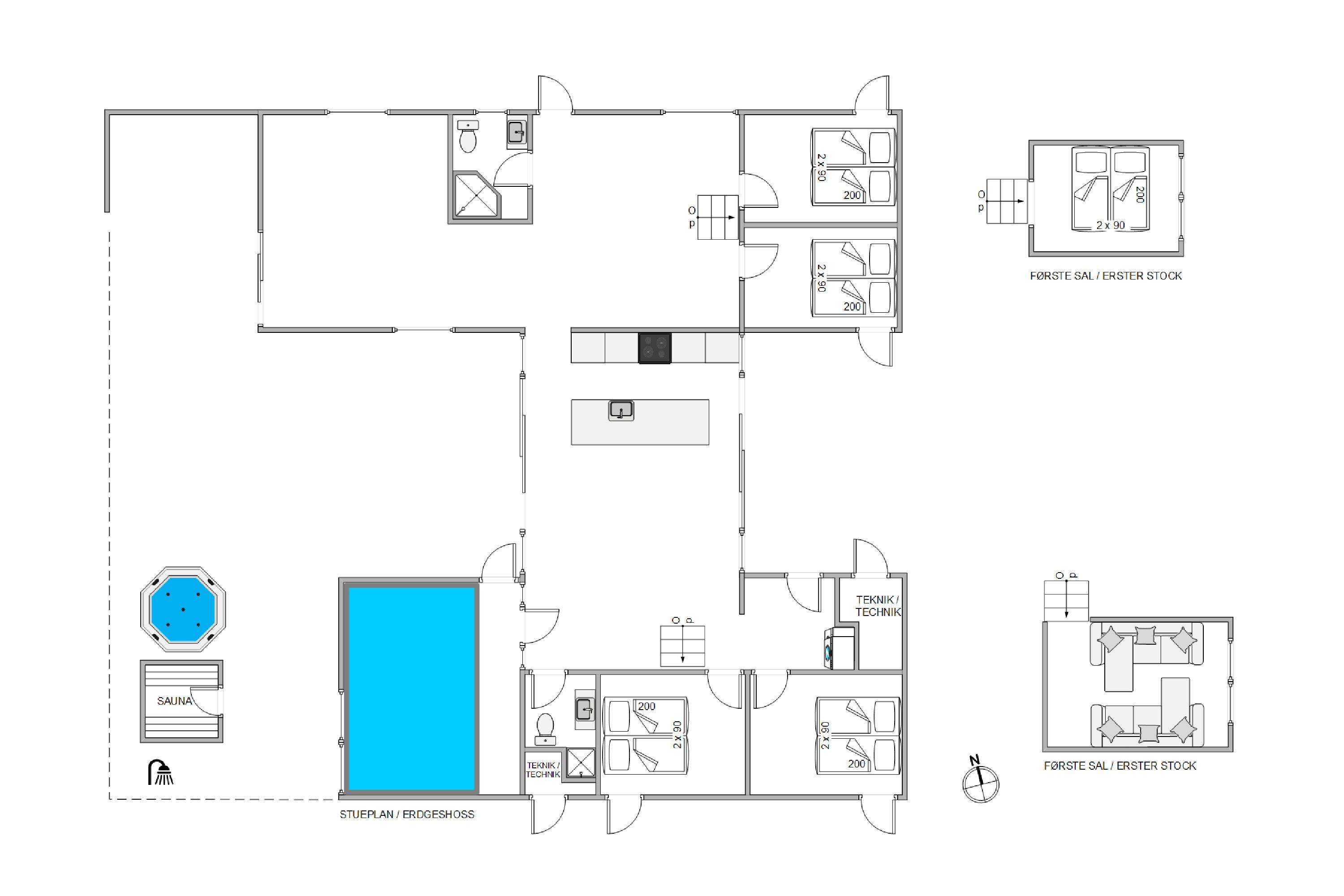
Om huset
Det moderne poolhus på Sønder-Vasevej 2B i Blåvand emmer af luksus. Sommerhuset er 250 m2 stort og er bygget i 2021, og her finder I mange gode faciliteter såsom et stort aktivitetsrum, pool, spa og udendørssauna. Der er plads til 12 personer (de 2 sofaer på den ene hems er sovesofaer), og sommerhuset egner sig derfor godt til en ferie med flere familier eller en stor vennegruppe. Det dejlige sommerhus ligger blot et stenkast fra indkøbsmuligheder og den vestjyske sandstrand, hvor I kan få en masse timer til at gå.
Der er også en ladestation til jeres el-bil ved ferieboligen (CEE-stik), og bemærk, at forbrug af strøm og vand er inkluderet i prisen.
Pool og aktivitetsrum på Sønder-Vasevej 2B
Sommerhuset på Sønder-Vasevej 2B byder på alt det udstyr, som I har brug for på en ferie og mere til. I det store opholdsrum er der højt til loftet, og de flotte kvalitetsmøbler indbyder til afslapning og fælles hygge. Ved siden af opholdsrummet ligger det store aktivitetsrum, hvor I kan afholde små turneringer i både billard og bordtennis.
I det lyse og rummelige køkken med kogeø og moderne udstyr kan I være sammen om madlavningen og bagefter nyde den gode mad ved det store spisebord. I kan også nyde udsigten til den vajende marehalm gennem de store vinduespartier i køkkenet, hvor der desuden er udgang til den dejlige terrasse.
Sommerhusets to badeværelser er moderne og elegant indrettet og har naturligvis gulvvarme. Sovepladserne er placeret på to forskellige sider af huset, så I kan dele dem godt op - f.eks. hvis I holder ferie med 2 familier. I alt er der 4 soveværelser med komfortable dobbeltsenge og 2 hemse med i alt 4 sovepladser. Alle soveværelser er smukt indrettet med lyse paneler og skabe og er udstyret med eget fjernsyn.
Et af de helt store plusser ved sommerhuset er den moderne pool, som både indbyder til afslapning og til timevis af sjov og plask i det blå vand, og med den udendørs spa og sauna, er der alle muligheder for at få wellness som en del af ferien.
Hele sommerhuset opvarmes desuden med en varmepumpe, som driver gulvvarmen på en energibesparende måde, og I behøver ikke bekymre jer om forbruget af el eller vand, da dette er inkluderet i prisen.
Sommerhus med både 6 personers udespa og udendørssauna
Fra opholdsstuen har I adgang til den rummelige, overdækkede terrasse, hvor I kan sidde i læ for Vestenvinden og på de kølige dag få varmen fra strålevarmerne. Fra køkkenet er der adgang til den åbne og delvis afskærmede terrasse, hvor I kan nyde en dejlig middag kreeret af feriens grillmester. Skulle I have lyst til en middagslur, eller er vejret til solbadning, er der naturligvis solvogne og parasol til jeres rådighed.
Feriehuset er beliggende på en stor og smuk naturgrund med både trampolin og volleyballbane. Når aftenen falder på, kan I tænde bål på bålpladsen og grille pølser eller skumfiduser, og for fritidsenthusiasten kan natten tilbringes i den flotte shelter.
Gæster i dette feriehus må elske luksus og wellness, og her kan I jo nyde både en dejlig varm udesauna og en boblende spa til en stille morgenstund eller den smukke solnedgang. Fra 1. april til 31. oktober er der også en udebruser, hvor I kan få et forfriskende skyl eventuelt efter en tur i det brusende Vesterhav.
Blot 300 meter til stranden og andre nærliggende aktiviteter
Kun 300 meter adskiller jer fra Vesterhavet og de brusende bølger. Her kan I dyrke alle former for vandsport, bygge sandslotte, samle skaller og måske være heldige at finde rav. Den flotte rene sandstrand lokker også til en tur i bølgerne eller også en god lang gåtur langs vandet.
Den livlige handelsgade med de mange butikker, caféer og restauranter ligger i gåafstand fra feriehuset, og der befinder sig også kulturelle aktiviteter i nærheden. I kan for eksempel besøge Blåvandshuk Fyr og nyde den smukke udsigt, tage en tur til Blåvand Zoo eller høre om de spændende historier fra krigen i Tirpitz Museum, ligesom alle naturoplevelser langs Vestkysten er indenfor køreafstand.
- Soverum:4
- Bolig-/Grundareal:250 / 1781 m²
- Byggeår:2021
Lokalkontor
Esmark Blåvand
Telefon: +45 69 15 96 16
E-mail: blaavand@esmark.dk
Nøgleudlevering
Nøglen kan afhentes fra kl. 15.00, men vi udleverer den også gerne tidligere på dagen, hvis feriehuset er klar til indflytning før tid.
Charlotte DrägerDeutschlandAI Oversat
5 ud af 5
5 ud af 5
5 out of 5
5 ud af 5
5 ud af 5
5 out of 5
Vi havde en fantastisk ferie i dette hus! Det åbne spise- og opholdsområde, kælenavnene, alt det er absolutte højdepunkter. Udeområdet med alle dets tilbud også! Man skal tage en eller to skarpe knive med, de manglede i det ellers meget veludstyrede køkken.
GastDeutschlandAI Oversat
4 ud af 5
4 ud af 5
4 out of 5
4 ud af 5
4 ud af 5
4 out of 5
Et dejligt feriehus til op til 12 personer i gåafstand til stranden og byen med alle de butikker, man kunne have brug for. Udeområderne med overdækket opvarmning, sauna, whirlpool, volleyballnet, grillhjørne er fantastisk!
Hanna SteckhanDeutschlandAI Oversat
4.5 ud af 5
4.5 ud af 5
4.5 out of 5
4.5 ud af 5
4.5 ud af 5
4.5 out of 5
Meget flot hus. God isolering og støjkulisse. God beliggenhed.
GastDeutschlandAI Oversat
5 ud af 5
5 ud af 5
5 out of 5
5 ud af 5
5 ud af 5
5 out of 5
Dejligt hus, flot opdeling af værelserne. Terrasse perfekt !
Lene OlsenDanmark
3 ud af 5
3 ud af 5
3 out of 5
3 ud af 5
3 ud af 5
3 out of 5
Det runger meget inde i huset. Umiddelbart kommer det fra varmepumpen. Det er ikke særlig afslappende når 2 af værelserne og den ene hems + køkken-alrum ligger i den del af huset hvor det runger mest. Køkkenet er mangelfuldt og knive virkelig dårlige. Kogeplade varmer dårligt. Opvasker larmer rigtig Meget. Det er generelt det billigede af det billigste hvidevare og udstyr i køkkenet. Kaffemaskine. Tog 30min for 1 kande. Det er simpelthen ikke godt når man er 12 personer. Så tag jeres egen med Pool rum rigtig fint med indbygget højtaler. Udespa rigtig lækker og udemiljø rigtig fint. God sauna. Godt multirum og fin stue med rummelig sofa. Dejlig Med Samsung smart TV på alle værelser. Fine senge. Men rigtig dårligt hovedpuder og dyner. Der er ikke nogle dører i huset ud over til værelser og toilet. Hvilket er meget upraktisk med hensyn til larm når man er mange. Der er ingen vinduer i værelserne. Kun døre. Som ikke kan stå på kip. Så vi var nødt til at sove med helt åben dør, hvilket føles lidt utryk. Huset bærer præg af mangel på vedligehold da stikkontakterne nogle steder hang ud af væggene. Dørerne hang og gik dårligt. Desværre syntes jeg ikke at prisen og kvaliteten på huset stemmer overens
Response from Esmark: (08/12/2025)
Kære Gæst
Tak for din anmeldelse.
Visse ting i en sommerhus vil blive opfattet meget individuelt af vores gæster, da folk har forskellige præferencer, f.eks. hvad angår hovedpuder, støj fra opvasker og varmepumpe m.m.
Køkkenudstyret har husejeren nu fået gennemgået med omhu, så der fremover gerne skulle være alle de ting, man måtte ønske sig som gæst. Vi har bl.a. også anbefalet ejeren at få en større kaffemaskine, for selvfølgelig skal det ikke tage en halv time at brygge en kande kaffe.
M.h.t. ventilation ved nattetide har vi tjekket, at nogle af terassedørene i soveværelserne kan sættes i hak til et køligere indeklima, men dog ikke alle.
Under vores gennemgang af huset fandt vi ikke stikkontakter, som hang ud af væggene, eller døre som hang. Hvis I under et fremtidigt ophold oplever dette, så kontakt venligst jeres lokale Esmark-kontor hurtigst muligt, da vi så naturligvis vil komme og undersøge samt udbedre problemet omgående. Dette jo fordi vi gerne vil have en chance for at udbedre evt. fejl og mangler og dermed give jer et bedre ophold.
Vi håber at se jer en anden gang hos Esmark og vil ønske jer en god jul.
Mvh. Team Esmark
GæstDanmark
4 ud af 5
4 ud af 5
4 out of 5
4 ud af 5
4 ud af 5
4 out of 5
Lækkert sommerhus, med mange gode faciliteter. Kan sagtens også nydes i de kolde måneder. Stranden er dejlig tæt på. Byen er i dejlig gåafstand, men stadig langt nok væk, til at det ikke vrimler med folk her.
GastDeutschlandAI Oversat
5 ud af 5
5 ud af 5
5 out of 5
5 ud af 5
5 ud af 5
5 out of 5
Det er et vidunderligt feriehus i meget smukke omgivelser. Meget rummeligt bygget med fantastisk og høj kvalitet i alle områder. En interessant arkitektur. Desuden godt isoleret, så andre kan nyde roen trods sjov i poolen, ved billard eller bordtennis. Udendørsarealerne er også meget smagfulde og værdifulde!
GastDeutschlandAI Oversat
5 ud af 5
5 ud af 5
5 out of 5
5 ud af 5
5 ud af 5
5 out of 5
Super sommerhus med smuk indretning, mange fritidsaktiviteter indenfor samt udenfor!!
Otto TebacherDeutschlandAI Oversat
5 ud af 5
5 ud af 5
5 out of 5
5 ud af 5
5 ud af 5
5 out of 5
Alt i alt har huset og beliggenheden mere end overbevist, der er meget stille rundt omkring, anlægget er MEGA stort og huset som omkring huset tilbyder noget for enhver, fra sauna til pool og trampolin som sandplads osv. indendørs med swimmingpool og meget mere......vi var kun begejstrede og det har overgået vores forventninger ret meget. Mange tak og gerne igen. Også servicen fra administrationen er 1. klasse.
Eric BöhmDeutschlandAI Oversat
4.5 ud af 5
4.5 ud af 5
4.5 out of 5
4.5 ud af 5
4.5 ud af 5
4.5 out of 5
Han bør kigge på internettet. Det gik ned tre gange hos os.
GastDeutschlandAI Oversat
5 ud af 5
5 ud af 5
5 out of 5
5 ud af 5
5 ud af 5
5 out of 5
Et vidunderligt hus, der ikke lader nogen ønsker være uopfyldt. Udstyr, tilstand og beliggenhed er på et topniveau. Der var ingen rigtig brødrister. Vi fandt i hvert fald ingen.
Silke WescheDeutschlandAI Oversat
5 ud af 5
5 ud af 5
5 out of 5
5 ud af 5
5 ud af 5
5 out of 5
Feriehuset opfylder alle forventninger til en afslappende ferie ved den danske Nordsøkyst. Det tilbyder masser af plads og rum til aktiviteter og afslapning for både børn og voksne. Indretningen var meget tiltalende og faciliteterne efterlod intet tilbage at ønske.
GæstDanmark
5 ud af 5
5 ud af 5
5 out of 5
5 ud af 5
5 ud af 5
5 out of 5
Lækkert feriehus med gode faciliteter og gode senge. Stigerne til hemsen er ikke så baby/børnevenlige og svære at spærre af, men det var vi kla rover fra billederne.
GastDeutschlandAI Oversat
5 ud af 5
5 ud af 5
5 out of 5
5 ud af 5
5 ud af 5
5 out of 5
Meget skønt og super veludstyret sommerhus, der ikke efterlader nogen ønsker. Indbydende og smart indrettet, meget høj kvalitet. Udenfor som indeni, fantastisk poolområde. Vejen til havet er, selv for børn, til at klare. Stranden er typisk dansk, meget bred, ren og velholdt.
Thomas OhlowDeutschlandAI Oversat
4 ud af 5
4 ud af 5
4 out of 5
4 ud af 5
4 ud af 5
4 out of 5
Moderne sommerhus tæt på stranden med masser af plads på terrasserne og flot udendørs område. Stuen ligger meget praktisk adskilt fra spise- og legeområde. God lydisolering.
Sonja KarlauDeutschlandAI Oversat
5 ud af 5
5 ud af 5
5 out of 5
5 ud af 5
5 ud af 5
5 out of 5
Sommerhuset har opfyldt alle forventninger, udstyret var super, huset er meget smagfuldt indrettet. Intet manglede.
Armin KleinDeutschlandAI Oversat
5 ud af 5
5 ud af 5
5 out of 5
5 ud af 5
5 ud af 5
5 out of 5
Et hus til at føle sig godt tilpas i, meget moderne og godt indrettet; hvert soveværelse har egen tv og en dejlig udendørsanlæg. Jeg kan kun anbefale det videre.
Jennifer ZeuchnerDeutschlandAI Oversat
5 ud af 5
5 ud af 5
5 out of 5
5 ud af 5
5 ud af 5
5 out of 5
Meget flot sommerhus, tilstrækkelig plads. Meget moderne indrettet. Man mangler intet :)
Indretning
Kalender
Om området

Dit servicekontor i nærheden
Esmark Blåvand
Blåvandvej 1
6857 Blåvand
Telefon: +45 69 15 96 16
Email: blaavand@esmark.dk
Beliggenhed & landskabet
Blåvand er Danmarks vestligste punkt og byder på en god blanding af natur og oplevelser. Den sydlige strand er meget børnevenlig og ofte mere rolig takket være Horns Rev, mens Vesterhavet mod nord bruser med store bølger og mere rå natur. Mange sommerhuse ligger i flot natur med hede, klitter eller skov, og andre ligger midt i feriebyen, hvor der er en kort gåtur til butikker og restauranter.
Indkøb og shopping
Blåvand er et rigtigt dejligt sted, hvis man gerne vil gå på opdagelse i butikker. Hovedgaden summer af liv og lokker med alt fra modebutikker og dansk design til specialforretninger med outdoor-udstyr. Det bedste af det hele? Mange af butikkerne og de store supermarkeder (Spar, Meny og Netto) har åbent næsten hele året rundt. Vil du på en lille shoppetyr, er der ikke langt til handelsbyen Varde (ca. 22 km) og Esbjerg (ca. 36 km) med Danmarks længste gågade og det store shoppingcenter “Broen”.
Restauranter og caféer
I Blåvand er der madoplevelser for en hver smag. Du kan for eksempel nyde friskfanget fisk hos „Blåvand Fiskerestaurant“, finde spændende specialiteter hos „Hr. Skov“ eller nyde en middag med udsigt over havet hos „Høfde 4“. Har du mere lyst til hyggeligt samvær og god stemning, er ”Biergarten Blåvand” et oplagt sted at besøge, især når der er arrangementer på programmet. Hos „Wine & Delights“ kan du blandt andet nyde gode vine og lækker tapas. Og så skal du selvfølgelig ikke gå glip af en klassisk softice eller gammeldags vaffelis i en af byens hyggelige caféer.
Aktiv ferie og fritid
Når du holder ferie i Blåvand, kan du nyde naturen bedst på de lange sandstrande eller tage på tur i Bordrup, Oksby og Ho Klitplantage (ca. 3–8 km). Kan du godt lide en god gåtur, kan du nyde stilheden på skovenes stier. Og hvis du er mere til cykling, finder du nogle af Danmarks bedste mountainbike-ruter i Bordrup Plantage. Hvis du elsker at en god konkurrence, så er en tur på den førsteklasses adventure-golfbane hos West Coast Minigolf i hjertet af byen et absolut hit.
Seværdigheder
Områdets vartegn er Blåvandshuk Fyr, hvorfra du kan nyde den flotte panoramaudsigt ud over havet og hele kysten. Hvis du er nysgerrig på historie, skal du ikke snyde dig selv or et besøg på Tirpitz (ca. 3 km), som ligger gemt i klitterne, eller museet „FLUGT“ i Oksbøl (ca. 14 km) – begge museer er spændende for børn og voksne i alle aldre.
Ferie med hund
De firbenede familiemedlemmer er mere end velkomne i Blåvand! I lavsæsonen (oktober-marts) må hunde løbe frit på stranden, og hele året rundt kan I besøge den indhegnede hundeskov i Oksby Plantage (ca. 4 km), hvor hunden trygt kan løbe og lege uden snor.
Sjov for hele familien
I Blåvand keder man sig aldrig. Besøg Blåvand Zoo og se de flotte hvide løver, støb dine egne lys hos Blåvand Lys eller se, hvordan man laver lækre bolcher hos Blåvand Bolcher. Har du lyst til mere leg og sjov, kan du besøge SportPark Blåvandshuk i Oksbøl (ca. 14 km), Hvidbjerg Strand Badeland og det store legeland „Play City“. TIP: Det verdensberømte LEGOLAND® i Billund (ca. 70 km) ligger kun en times kørsel væk.
20.898
20.898
20.898
Oplistet i: OmråderBlåvandSønder-Vasevej 2B, 6857 Blåvand




































































