Charmerende sommerhus med panoramaudsigt midt i Søndervig
Lodbergsvej 235, Søndervig - Sommerhusnr.: i6725
Om huset
På den attraktive ferieadresse Lodbergsvej 235 i Søndervig finder I dette charmerende og velholdte sommerhus. Det stråtækte sommerhus, opført i 2004, byder på en varm og indbydende atmosfære med masser af charme og hygge. Her får I et sommerhus i Søndervig med plads til op til 5 personer og 2 husdyr – ideelt til en bekymringsfri og afslappende ferie midt i den populære badeby Søndervig.
Lækker badehotelsstemning i sommerhus med udsigt på Lodbergsvej 235
Allerede når I træder indenfor i dette sommerhus i Søndervig, vil I opleve den særlige badehotelsstemning, som gør huset helt unikt. De smukke vægpaneler, flotte tapeter og sprossede vinduer skaber en autentisk og hyggelig atmosfære, som man sjældent finder i traditionelle sommerhuse til leje.
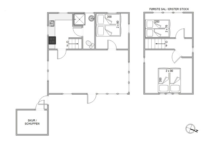
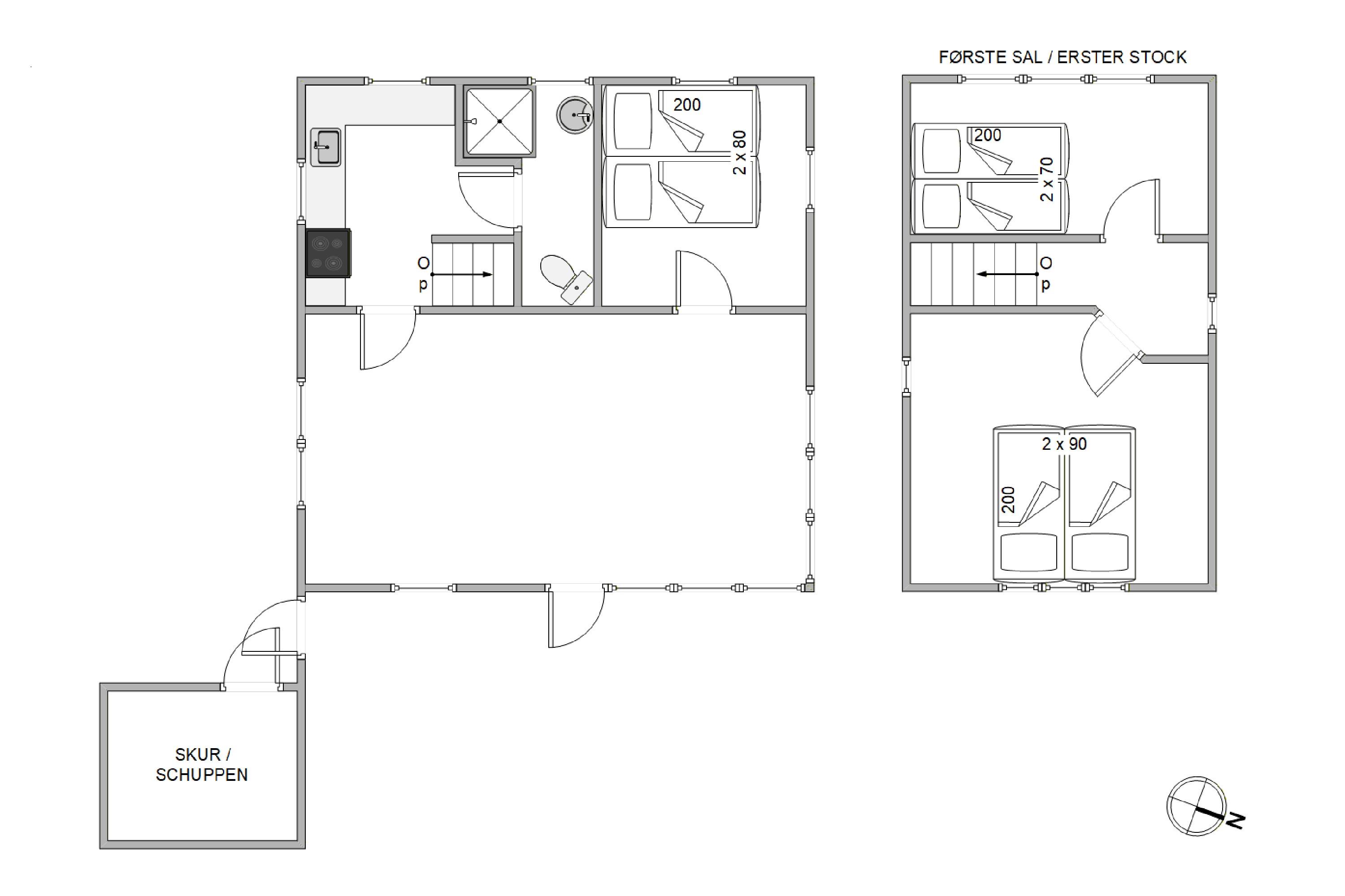
Selvom sommerhuset kun er på 72 kvadratmeter, er det optimalt indrettet med god plads til hele familien. Der er 3 soveværelser: 1 i stueplan med enkeltseng og 2 værelser på førstesalen – begge med dobbeltsenge. Et ideelt valg for dem, der søger et mindre, men velfungerende sommerhus tæt på Vesterhavet.
Opholdsrummet rummer både sofamøblement og spiseplads, samt det også fremstår lyst og åbent. De mange vinduer giver jer en fantastisk udsigt over Søndervig og det omkringliggende klitlandskab. I får derfor imødekommet jeres ønsker, hvis I ønsker et sommerhus med udsigt.
Udendørs hyggekroge og terrasser i læ
Det er ikke kun indendørs, at dette sommerhus i Søndervig imponerer. Udendørs finder I flere hyggelige terrasser, hvor I kan slappe af og nyde den vestjyske natur. Den sydvestvendte terrasse er oplagt til morgen- og formiddagssolen, mens terrassen mod vest inviterer til smukke solnedgange og aftensmad under åben himmel. Med grill til rådighed kan I også flytte madlavningen udenfor. Fra begge terrasser kan I nyde lyden af Vesterhavets brusen – en uforglemmelig og afslappende baggrundslyd
Sommerhus med unik beliggenhed midt i Søndervig
Klitgrunden på Lodbergsvej 235 er helt særlig. Her bor I midt i Søndervig – i gåafstand til både strand og by – men alligevel tilbagetrukket og ugeneret, takket være sommerhusets forhøjede placering. Det gør sommerhuset ideelt for jer, der søger privatliv og ro, men stadig vil have alt lige inden for rækkevidde.
Der er kun 200 meter til det brusende Vesterhav, og Søndervigs livlige bymidte ligger omkring 500 meter væk. Her finder I supermarkeder, butikker, restauranter og aktiviteter – alt sammen lige ved hånden, når I bor i dette centralt beliggende sommerhus tæt på Vesterhavet.
- Soverum:3
- Bolig-/Grundareal:72 / 640 m²
- Byggeår:2004
Lokalkontor
Esmark Søndervig
Telefon: +45 69 15 96 11
E-mail: sondervig@esmark.dk
Nøgleudlevering
Nøglen kan afhentes fra kl. 15.00, men vi udleverer den også gerne tidligere på dagen, hvis feriehuset er klar til indflytning før tid.
Indretning
Kalender
Om området

Dit servicekontor i nærheden
Esmark Søndervig
Lodbergsvej 18
6950 Ringkøbing
Telefon: +45 69 15 96 11
Email: sondervig@esmark.dk
3.478
3.478
3.478
Oplistet i: OmråderSøndervigLodbergsvej 235, 6950 Ringkøbing










































