Femstjernet sommerhus med sauna og udespa tæt på stranden
Bjerregårdsvej 381, Bjerregård - Sommerhusnr.: BB1071
Om huset
I det femstjernede sommerhus på Bjerregårdsvej 381 behøver I ikke at vælge mellem en afslappende ferie ved Vesterhavet eller en lækker wellnessferie. Det er bygget i 2021, og med plads til 8 personer har sommerhuset nemlig det hele; En lækker udespa, en skøn sauna, billard og kun 175 meter til Vesterhavet – hvad mere kan man ønske sig? Hunden er også hjerteligt velkommen.
Udendørs spa og sauna på Bjerregårdsvej 381
Når det er tid til afslapning, er terrassen et oplagt sted. Her står der en udendørs spa med plads til 6 personer, der kan forkæles med masser af afslapning i det varme, boblende vand. Uanset årstiden bør I give jer selv oplevelsen af en tur i spaen om aftenen, hvor I kan kigge op på den smukke stjernehimmel, mens I sidder i spaens varme vand og slapper af.
Mens nogle er en tur i spaen, kan andre benytte saunaen, hvor der også er garanti for god afslapning. Og så er en tur i sauna fantastisk efter en lang gåtur langs stranden.
Moderne indretning og skøn atmosfære
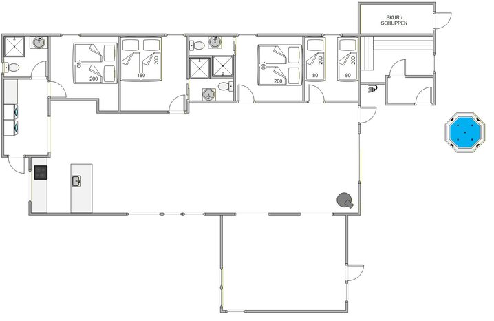
I sommerhuset på Bjerregårdsvej 381 vil I med garanti komme til at holde en skøn og afslappende ferie sammen. Sommerhuset har 4 soveværelser, 3 badeværelser og et stort opholdsrum, hvor køkken, stue og spisestue er forenet – det oplagte sted at samles til hygge, sjov og planlægning af feriedagene. Skal der skrues ekstra op for feriestemningen, kan I tænde op i brændeovnen og hygge jer med billard, mens mørket falder på.
Sommerhuset har en moderne indretning, hvor I kan læne jer tilbage og slappe af i komfortable møbler. Sammen med det gode lysindfald fra de mange vinduer, skaber det en skøn atmosfære.
Tilbring ferien på den afskærmede terrasse – kun 175 meter til stranden
På den afskærmede terrasse har I havemøbler til rådighed, så I kan tilbringe ferien udendørs fra morgen til aften. På ægte feriemanér kan I slutte dagene af med en god grillmiddag på terrassen.
Når solen så småt begynder at gå ned over Vesterhavet, kan I sætte jer op på toppen af klitterne. Herfra kan I nyde det fantastiske farvespil, når solen forsvinder i havet - det er en oplevelse, I sent vil glemme.
Sommerhuset på Bjerregårdsvej 381 ligger 175 meter fra stranden og Vesterhavet, og det tager jer kun få minutter at nå hertil. Det er helt perfekt, når I trænger til et dyp i Vesterhavet eller en gåtur med masser af frisk luft til hovedet.
Oplev Bjerregårds smukke natur
Bjerregård er den perfekte feriedestination for jer, der vil på ferie i naturskønne omgivelser. Området byder på masser af smuk og uberørt natur, og I har mange gode naturoplevelser i vente.
Ikke langt fra Bjerregård ligger fuglereservatet, Tipperne, hvor I kan spotte forskellige fuglearter. Blåbjerg Klitplantage er også et oplagt sted at besøge for jer, der vil opleve den vestjyske natur. I plantagen er der anlagt stier, hvor I kan komme helt tæt på naturen både til fods og på cykel.
Lademuligheden for elbilen er en ladestander, medbring eget kabel (type 2 stik).
- Soverum:4
- Bolig-/Grundareal:150 / 1202 m²
- Byggeår:2021
Lokalkontor
Esmark Bjerregård
Telefon: +45 69 15 96 12
E-mail: bjerregaard@esmark.dk
Nøgleudlevering
Nøglen kan afhentes fra kl. 15.00, men vi udleverer den også gerne tidligere på dagen, hvis feriehuset er klar til indflytning før tid.
Michael BraunDeutschlandAI Oversat
5 ud af 5
5 ud af 5
5 out of 5
5 ud af 5
5 ud af 5
5 out of 5
Vi havde et vidunderligt sommerhus, rent, af høj kvalitet og med poolbordet en fantastisk afveksling til "regnvejrsdage". Jeg ville booke det igen og igen!
Janina KöhlerDeutschlandAI Oversat
5 ud af 5
5 ud af 5
5 out of 5
5 ud af 5
5 ud af 5
5 out of 5
Vi kunne virkelig godt lide vores første ferie i Danmark. Vi var begejstrede for det smukke og moderne feriehus tæt på stranden. Huset var topudstyret, så vi manglede intet. Det er meget anbefalelsesværdigt.
GastDeutschlandAI Oversat
5 ud af 5
5 ud af 5
5 out of 5
5 ud af 5
5 ud af 5
5 out of 5
Meget velegnet til 2 familier. 3 badeværelser er optimale, også et til børnene. Udstyret lader næppe noget tilbage at ønske.
Lars ConradDeutschlandAI Oversat
5 ud af 5
5 ud af 5
5 out of 5
5 ud af 5
5 ud af 5
5 out of 5
Et stort, smukt og moderne hus med masser af aktiviteter og kort afstand til stranden. Ideelt til 2 familier med børn. Det var en dejlig uge i Bjerregard.
GastDeutschlandAI Oversat
5 ud af 5
5 ud af 5
5 out of 5
5 ud af 5
5 ud af 5
5 out of 5
Feriehuset er super udstyret, meget moderne og hyggeligt indrettet. Alt var meget rent og velholdt. Huset ligger i umiddelbar nærhed af strandopgangen, med klitgrundstykke Vi følte os meget godt tilpas her og ville til enhver tid booke dette hus igen. Mange tak for denne vidunderlige ferie
Tina DrägerDeutschlandAI Oversat
4.5 ud af 5
4.5 ud af 5
4.5 out of 5
4.5 ud af 5
4.5 ud af 5
4.5 out of 5
Super fantastisk hus, højdepunkterne var jacuzzien og nærheden til havet. Vægtene er godt isolerede, da nogle kunne se tv, mens andre stadig kunne sove. Super rent hus. En parasol ville ikke have været super
GastDeutschlandAI Oversat
4 ud af 5
4 ud af 5
4 out of 5
4 ud af 5
4 ud af 5
4 out of 5
Husets beliggenhed var fantastisk, kun 5 minutters gang fra stranden. Huset var meget moderne indrettet, og alt fungerede tilsvarende. Køkkenet var rent og godt organiseret. Whirlpoolen fungerede, og man kunne virkelig slappe af i den. Jeg savnede et afskærmning ved udendørsbruseren, især efter en tur i saunaen. Den kunne have været lidt mere diskret. Der var en stor Weber-grill til rådighed. Desværre syntes jeg, at sengene var alt for bløde. Konklusion: Huset er virkelig meget smukt, og vi ville også booke det igen. Vi havde en fantastisk ferie.
GastDeutschlandAI Oversat
5 ud af 5
5 ud af 5
5 out of 5
5 ud af 5
5 ud af 5
5 out of 5
Huset er kærligt indrettet. Det er rent, og alt hvad man har brug for, når man selv laver mad, er til stede.
Sandra BehrensDeutschlandAI Oversat
5 ud af 5
5 ud af 5
5 out of 5
5 ud af 5
5 ud af 5
5 out of 5
Huset er absolut en drøm
GastDeutschlandAI Oversat
5 ud af 5
5 ud af 5
5 out of 5
5 ud af 5
5 ud af 5
5 out of 5
Godt udstyret hyggeligt hus. Tre badeværelser, sauna og udendørs whirlpool var perfekte til vores ferie med voksne børn. Poolbordet lader heller ikke kedsomhed opstå i dårligt vejr.
Klaus KrügerDeutschlandAI Oversat
5 ud af 5
5 ud af 5
5 out of 5
5 ud af 5
5 ud af 5
5 out of 5
Dette hus kan varmt anbefales. Renlighed, udstyr, kvalitet, størrelse, ovn, alt perfekt. Vi havde en fantastisk uge ferie med 5 voksne og 2 børn i februar.
Lina AldenrydDanmark
5 ud af 5
5 ud af 5
5 out of 5
5 ud af 5
5 ud af 5
5 out of 5
Virkelig flot og lækkert feriehus! Vi havde den bedste ferie i skønne og rolige omgivelser
Lorna JacobDeutschlandAI Oversat
4 ud af 5
4 ud af 5
4 out of 5
4 ud af 5
4 ud af 5
4 out of 5
Feriehuset var meget smukt. Alt for at føle sig godt tilpas var til stede. Især kunne vi godt lide den opvarmede whirlpool. Beliggenheden er også super. Vi var meget hurtigt på den smukke sandstrand, der også er dejlig til gåture om vinteren. Vi kommer gerne igen.
Florian MarxDeutschlandAI Oversat
5 ud af 5
5 ud af 5
5 out of 5
5 ud af 5
5 ud af 5
5 out of 5
Huset er super godt beliggende, godt udstyret og meget rent. Vores højdepunkter var udendørs jacuzzi og billardbordet.
GastDeutschlandAI Oversat
5 ud af 5
5 ud af 5
5 out of 5
5 ud af 5
5 ud af 5
5 out of 5
Vi har haft en meget dejlig ferie i sommerhuset. Godt udstyret sommerhus og kun 5 minutters gang til stranden.
GastDeutschlandAI Oversat
5 ud af 5
5 ud af 5
5 out of 5
5 ud af 5
5 ud af 5
5 out of 5
meget flot strandnært feriehus, roligt beliggende for enden af en blind vej, derfor meget roligt
Verena ZwickDeutschlandAI Oversat
5 ud af 5
5 ud af 5
5 out of 5
5 ud af 5
5 ud af 5
5 out of 5
Et stort og virkelig godt udstyret sommerhus, hvor man kan føle sig hjemme. På terrassen er der sol hele dagen, og den er meget rolig beliggende. Vejen til stranden er kort. Køkkenet er mere end godt udstyret, badeværelserne i værelserne er lidt små eller smalle, men det fandt vi ikke slemt. Vi har ved afrejse booket dette hus til næste år igen, fordi vi var virkelig tilfredse.
Olaf KrögerDeutschlandAI Oversat
4.5 ud af 5
4.5 ud af 5
4.5 out of 5
4.5 ud af 5
4.5 ud af 5
4.5 out of 5
Et meget smukt og smagfuldt sommerhus. Alt er til stede, som gør en afslappet ferie mulig.
Marc StaupendahlDeutschlandAI Oversat
5 ud af 5
5 ud af 5
5 out of 5
5 ud af 5
5 ud af 5
5 out of 5
Perfekt udstyret feriehus med en ideel beliggenhed "næsten" direkte ved stranden. Super whirlpool og sauna, stor terrasse med masser af privatliv i ideel solbeliggenhed. Køkkenet er superudstyret med stort spisebord, gasgrill på terrassen og tv-hjørne med plads til 6 til 8 personer. Komfortable senge og moderne badeværelser. Bare et klassehus til at chille og slappe af. Super internet fiberforbindelse!
GastDeutschlandAI Oversat
4 ud af 5
4 ud af 5
4 out of 5
4 ud af 5
4 ud af 5
4 out of 5
Dejlig beliggenhed og nær stranden med hyggelig atmosfære og smagfuld indretning.
GastDeutschlandAI Oversat
5 ud af 5
5 ud af 5
5 out of 5
5 ud af 5
5 ud af 5
5 out of 5
Store, hyggelige, alting er der hvad feriehjerte begærer.
Indretning
Kalender
Om området

Dit servicekontor i nærheden
Esmark Bjerregård
Sønder Klitvej 195
6960 Hvide Sande
Telefon: +45 69 15 96 12
Email: bjerregaard@esmark.dk
Beliggenhed & landskabet
Bjerregård er et af de mest populære ferieområder ved Vesterhavet, idyllisk placeret på den smalle landtange Holmsland Klit mellem det brusende hav og den rolige Ringkøbing Fjord. Området byder på store, fredede hede- og klitarealer, hvor sommerhusene ligger spredt i det kuperede klitlandskab, ofte kun et stenkast fra vandet.
Indkøb og shopping
"Min Købmand" i Bjerregård har åbent året rundt og tilbyder alt fra dagligvarer til friskbagt morgenbrød. For shopping findes et spændende udvalg af specialbutikker i Hvide Sande (ca. 15 km), mens den historiske købstad Ringkøbing (ca. 30 km) byder på en af Danmarks smukkeste gågader.
Restauranter og caféer
Lige ved købmanden finder du "Nordsø Fisk" (sæsonåbent), som har et fantastisk udvalg af både friskfanget fisk og lækre røgede specialiteter samt takeaway. Vi anbefaler også en middag på den historiske Nymindegab Kro (ca. 7 km) eller et besøg i Hvide Sande (ca. 15 km), som bugner af hyggelige caféer og gode fiskerestauranter på havnen.
Aktiv ferie og fritid
Området er et mekka for bevægelse. Nyd en dukkert i Vesterhavets bølger eller det børnevenlige, lave vand ved fjorden (f.eks. Bork Havn). Naturen indbyder til vandreture, ravjagt og cykelture ad naturstien gennem klitterne. Fjorden er desuden verdenskendt for windsurfing og SUP, mens Nymindegab tilbyder skinnecykler.
Seværdigheder
Oplev fuglereservatet Tipperne (ca. 12 km), besøg den historiske strandfogedgård Abelines Gaard (8 km), eller nyd panoramaudsigten fra toppen af Lyngvig Fyr (ca. 21 km). I Hvide Sande giver Fiskeriets Hus et spændende indblik i lokalhistorien, mens JyllandsAkvariet Hvide Sande bringer jer helt tæt på livet under havoverfladen.
Ferie med hund
Vesterhavets strande er et sandt paradis for hunde. Til leg uden snor kan I besøge den indhegnede hundeskov i Nymindegab (8 km), hvor jeres firbenede ven kan løbe frit og trygt.
Sjov for hele familien
Børnene vil elske den centrale legeplads i Bjerregård. Til de vandglade er det store Lalandia i Søndervig (ca. 28 km) et sikkert hit, mens LEGOLAND® (ca. 65 km) og WOW PARK i Skjern (ca. 30 km) byder på vilde oplevelser i topklasse. En tur til Bork Vikingehavn (ca. 15 km) er også en spændende tidsrejse for små krigere.
7.638
7.638
7.638



















































